Maison neuve à
Arsy (60190) Référence : CY2467519_1

Prix du projet : Maison avec Terrain

prix 282 900 €

  • 5 pièces
  • 3 chambres
  • Surface maison 80 m2

VENTE d'une maison F5 (80 m²) à Arsy
IDÉALEMENT SITUÉE - MAISON 5 PIÈCES NEUVE
À quelques kilomètres de Compiègne, nous vous présentons en vente, idéalement située dans Arsy (60190), cette maison de 5 pièces de 80 m².
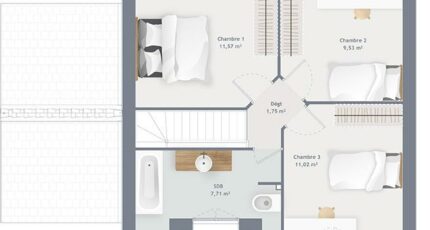
Cette maison comporte 2 niveaux. Son intérieur comporte trois chambres, une cuisine et une salle de bains. Cette maison est neuve.
Le terrain de la propriété est de 940 m².
La maison est située dans un quartier recherché. L'École Primaire Séraphine Louis est implantée à moins de 10 minutes à pied. Niveau transports, on trouve six gares à moins de 10 minutes en voiture. L'autoroute A1 et la nationale N31 sont accessibles à moins de 2 km. Il y a une bibliothèque à proximité.
Son prix de vente est de 282 900 €.
Prenez contact avec notre agence (YAHIAOUI Cedric : 06-66-57-00-63) pour tout renseignement sur le bien et sur les modalités de vente. Maisons France Confort Mareuil-lès-Meaux vous accompagne dans tous vos projets immobiliers et dans toutes vos démarches.

Annonce proposée par un Agent Commercial Partenaire.

Mentions légales

Terrain proposé par un partenaire foncier selon disponibilités et autorisation de publicité au prix de 92 900 €. Hors droit d'enregistrement et frais de notaire. Terrain + Maison proposés au prix de 282 900 € (Hors branchements et raccordements, papiers peints, peintures, revêtement de sol dans les chambres. Tarif modifiable sans préavis). Etiquette énergie : A. Différents modèles disponibles pour ce terrain. Assurances et garanties du constructeur (RC professionnelle, décennale, dommage ouvrage, garantie de remboursement de l'acompte, livraison à prix et délai convenu) : https://www.maisons-france-confort.fr/mentions-legales/. HEXAOM Services est enregistré auprès de l'ORIAS en tant que Courtier en financement, Niveau 1, sous le numéro 14001345.

Contactez l'agence de Mareuil-lès-Meaux

01 60 09 28 30

    * Champs obligatoires

    Vos informations sont traitées par HEXAOM et transmises à un conseiller commercial qui vous contactera afin de répondre à votre demande. Les plans et images présentés sur notre site sont la propriété d’HEXAOM et ne peuvent pas être reproduits sans son accord. Pour retrouver notre politique de protection des données personnelles et exercer vos droits conformément à la « loi informatique et liberté » cliquez-ici.