Maison neuve à
Aubais
(30250) Référence :
LR2404025_2
Prix du projet : Maison avec Terrain
prix 458 900 €
- 6 pièces
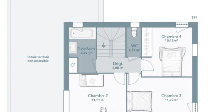
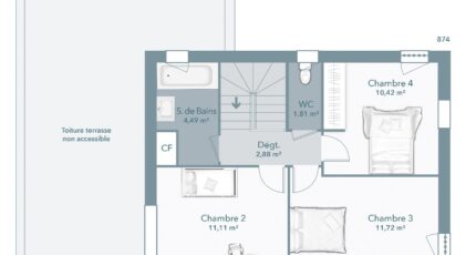
- 4 chambres
- Surface maison 110 m2
Maison de 6 pièces (110 m²) à vendre à Aubais
IDÉALEMENT SITUÉE - MAISON 6 PIÈCES NEUVE
À vendre : dans un village de la Vaunage, situé à 10 minutes de Sommières, 20 minutes de Lunel, 25 minutes de Nîmes, idéalement située dans Aubais (30250), laissez vous charmer par cette maison de 6 pièces de 110 m² sur 500 m² de terrain. Son intérieur inclut quatre chambres, une cuisine et deux salles de bains.
C'est une maison de 2 niveaux. Elle est neuve.
Cette maison se situe dans un quartier recherché. On y trouve des écoles maternelles et élémentaires ainsi qu'une crèche. Niveau transports, on trouve six gares à moins de 10 minutes en voiture. Il y a un accès à l'autoroute A9 à 4 km. Il y a une bibliothèque, une épicerie et un bureau de poste à proximité du bien.
Elle est proposée à l'achat pour 458 900 €.
N'hésitez pas à prendre contact avec Lionel ROMERA (06-30-39-77-79) pour toute question sur la maison. Maisons France Confort Montpellier vous accompagne à toutes les étapes de l'achat et dans tous vos projets immobiliers.
Annonce proposée par un Agent Commercial Partenaire.
Mentions légales
Terrain proposé par un partenaire foncier selon disponibilités et autorisation de publicité au prix de 189 900 €. Hors droit d'enregistrement et frais de notaire. Terrain + Maison proposés au prix de 458 900 € (Hors branchements et raccordements, papiers peints, peintures, revêtement de sol dans les chambres. Tarif modifiable sans préavis). Etiquette énergie : A. Différents modèles disponibles pour ce terrain. Assurances et garanties du constructeur (RC professionnelle, décennale, dommage ouvrage, garantie de remboursement de l'acompte, livraison à prix et délai convenu) : https://www.maisons-france-confort.fr/mentions-legales/. HEXAOM Services est enregistré auprès de l'ORIAS en tant que Courtier en financement, Niveau 1, sous le numéro 14001345.Agence Maisons France Confort de Montpellier (34000)
- Téléphone :
- 04 67 64 85 11
- Adressse :
- 48, impasse Louis Ferdinand Herold
34000 Montpellier, France
