Maison neuve à
Bassan (34290) Référence : AB2392488_1

Prix du projet : Maison avec Terrain

prix 207 000 €

  • 2 pièces
  • 1 chambre
  • Surface maison 50 m2

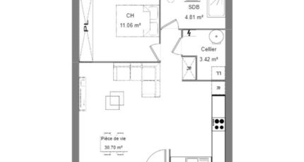
PROJET DE CONSTRUCTION - Maison de 2 pièces (50 m²) à Bassan
PROCHE DE BÉZIERS - MAISON 2 PIÈCES
En vente : localisée à 18 km de la mer Méditerranée et à 7 km de Béziers, notre agence Maisons France Confort Béziers est ravie de vous proposer cette maison de 2 pièces de plain-pied de 50 m² et de 386 m² de terrain à Bassan (34290). Conçue de plain-pied, elle est composée d'une chambre, d'une cuisine et d'une salle de bains.
(Carrelage inclus dans toutes les pièces / Raccordements inclus).
Il y a une école primaire dans le quartier. Niveau transports, on trouve les gares Magalas et Béziers à moins de 10 minutes en voiture. Les autoroutes A75 et A9 sont accessibles à moins de 9 km. Il y a un tennis, une boulangerie, un commerce et une épicerie dans les environs.
Elle est proposée à l'achat pour 207 000 €.
Pour plus d'information contacter Anthony BALLESTER : 06-27-21-51-55 Maisons France Confort Béziers pour échanger sur votre projet et réaliser une étude gratuite. (Plan personnalisable). Tous nos ouvrages sont réalisés sur-mesure en fonction de vos attentes et de nos échanges avec vous ainsi que dans le respect de la règlementation RE 2020. Ce projet comporte les garanties suivantes: Contrat de construction CCMI. Dommage/Ouvrage. RC Garantie décennale. Parfaite achèvement. Etude de sol G2. Prix et délais convenu. Garantie de livraison. Garantie financière Pour votre tranquillité nous nous occupons de toutes les formalités administratives.

Mentions légales

Terrain proposé par un partenaire foncier selon disponibilités et autorisation de publicité au prix de 109 900 €. Hors droit d'enregistrement et frais de notaire. Terrain + Maison proposés au prix de 207 000 € (Hors branchements et raccordements, papiers peints, peintures, revêtement de sol dans les chambres. Tarif modifiable sans préavis). Etiquette énergie : A. Différents modèles disponibles pour ce terrain. Assurances et garanties du constructeur (RC professionnelle, décennale, dommage ouvrage, garantie de remboursement de l'acompte, livraison à prix et délai convenu) : https://www.maisons-france-confort.fr/mentions-legales/. HEXAOM Services est enregistré auprès de l'ORIAS en tant que Courtier en financement, Niveau 1, sous le numéro 14001345.

Contactez l'agence de Béziers

04 67 00 85 60

    * Champs obligatoires

    Vos informations sont traitées par HEXAOM et transmises à un conseiller commercial qui vous contactera afin de répondre à votre demande. Les plans et images présentés sur notre site sont la propriété d’HEXAOM et ne peuvent pas être reproduits sans son accord. Pour retrouver notre politique de protection des données personnelles et exercer vos droits conformément à la « loi informatique et liberté » cliquez-ici.