Maison neuve à
Beaufay
(72110) Référence :
LL2424267_3
Prix du projet : Maison avec Terrain
prix 259 000 €
- 5 pièces
- 3 chambres
- Surface maison 100 m2
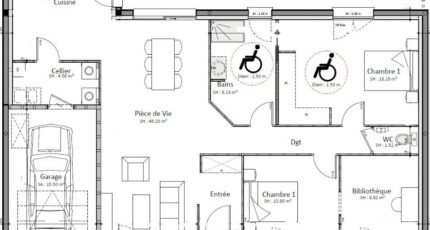
VENTE : maison de 5 pièces (100 m²) à Beaufay
EMPLACEMENT PRIVILÉGIÉ - MAISON 5 PIÈCES NEUVE Normes PMR
À vendre : localisée à quelques kilomètres du Mans, nous sommes ravis de vous présenter, bénéficiant d'un emplacement privilégié dans Beaufay (72110), cette maison de 5 pièces de plain-pied de 100 m² et de 716 m² de terrain. Son intérieur est composé de trois chambres, d'une cuisine et d'une salle de bains.
La maison est neuve.
La maison se trouve dans un secteur convoité. Une école primaire y est implantée. Les autoroutes A11 et A28 sont accessibles à moins de 16 km. Il y a un tennis, une boulangerie et une épicerie dans les environs.
Elle est proposée à l'achat pour 259 000 €.
Prenez contact avec Luc LIVET (07-77-76-37-30) pour toute information sur la maison, sur les démarches à suivre ou sur les modalités de vente. Maine Construction Le Mans est là pour vous accompagner à toutes les étapes de votre projet.
Mentions légales
Terrain proposé par un partenaire foncier selon disponibilités et autorisation de publicité au prix de 39 500 €. Hors droit d'enregistrement et frais de notaire. Terrain + Maison proposés au prix de 259 000 € (Hors branchements et raccordements, papiers peints, peintures, revêtement de sol dans les chambres. Tarif modifiable sans préavis). Etiquette énergie : A. Différents modèles disponibles pour ce terrain. Assurances et garanties du constructeur (RC professionnelle, décennale, dommage ouvrage, garantie de remboursement de l'acompte, livraison à prix et délai convenu) : https://www.maine-construction.fr/mentions-legales/. HEXAOM Services est enregistré auprès de l'ORIAS en tant que Courtier en financement, Niveau 1, sous le numéro 14001345.Agence Maine Construction de Le Mans (72000)
- Téléphone :
- 02 43 21 93 33
- Adressse :
- Rond-point de César Antarès
72000 Le Mans, France
