Maison neuve à
Beaufay
(72110) Référence :
LL2424267_6
Prix du projet : Maison avec Terrain
prix 299 000 €
- 5 pièces
- 4 chambres
- Surface maison 119 m2
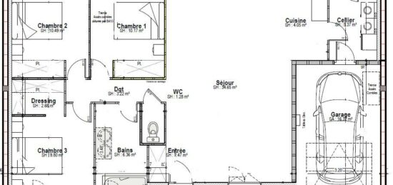
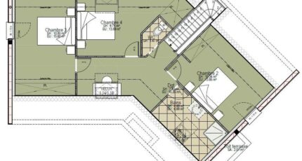
VENTE d'une maison de 5 pièces (119 m²) à Beaufay
EMPLACEMENT PRIVILÉGIÉ - MAISON 5 PIÈCES NEUVE
À vendre : à deux pas du Mans, bénéficiant d'un emplacement privilégié dans Beaufay (72110), nous vous présentons cette maison de 5 pièces de 119 m². Son intérieur dispose de quatre chambres, d'une cuisine et de deux salles de bains.
Le terrain du bien est de 716 m².
C'est une maison de 2 niveaux. Elle est neuve.
La propriété est située dans un secteur prisé. On y trouve une école primaire. Les autoroutes A11 et A28 sont accessibles à moins de 16 km. On trouve un tennis, une boulangerie et une épicerie à proximité du logement.
Elle est à vendre pour la somme de 299 000 €.
Contactez notre agence (Luc LIVET : 07-77-76-37-30) pour toute information sur la maison. Maine Construction Le Mans est là pour vous accompagner à toutes les étapes de votre projet.
Mentions légales
Terrain proposé par un partenaire foncier selon disponibilités et autorisation de publicité au prix de 39 500 €. Hors droit d'enregistrement et frais de notaire. Terrain + Maison proposés au prix de 299 000 € (Hors branchements et raccordements, papiers peints, peintures, revêtement de sol dans les chambres. Tarif modifiable sans préavis). Etiquette énergie : A. Différents modèles disponibles pour ce terrain. Assurances et garanties du constructeur (RC professionnelle, décennale, dommage ouvrage, garantie de remboursement de l'acompte, livraison à prix et délai convenu) : https://www.maine-construction.fr/mentions-legales/. HEXAOM Services est enregistré auprès de l'ORIAS en tant que Courtier en financement, Niveau 1, sous le numéro 14001345.Agence Maine Construction de Le Mans (72000)
- Téléphone :
- 02 43 21 93 33
- Adressse :
- Rond-point de César Antarès
72000 Le Mans, France
