Maison neuve à
Beauzelle
(31700) Référence :
XF2490526_6
Prix du projet : Maison avec Terrain
prix 460 000 €
- 5 pièces
- 3 chambres
- Surface maison 150 m2
Votre agence Maisons France Confort d'AUCAMVILLE vous propose ce beau projet maison + terrain à 5 minutes de BEAUZELLE .
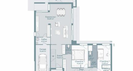
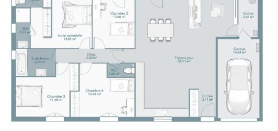
Cette maison de 150 m² avec son toit plat et ses lignes très modernes s'adaptera parfaitement, ces volumes sont astucieusement répartis. Cette maison dispose d'un espace jour de 51 m², 3 chambres dont une suite parentale avec salle d'eau et dressing et une salle de bains. Un garage de 17m² et un solarium de 115m² viennent compléter cette construction.
Elle se trouve sur une parcelle de 500 m² à 5 minutes des commodités et à 10 minutes de Toulouse.
Pour toutes informations, contactez l'agence MAISONS FRANCE CONFORT d'AUCAMVILLE .
PRIX : 460 000 € HF
Annonce proposée par un Agent Commercial Partenaire.
Mentions légales
Terrain proposé par un partenaire foncier selon disponibilités et autorisation de publicité au prix de 140 000 €. Hors droit d'enregistrement et frais de notaire. Terrain + Maison proposés au prix de 460 000 € (Hors branchements et raccordements, papiers peints, peintures, revêtement de sol dans les chambres. Tarif modifiable sans préavis). Etiquette énergie : A. Différents modèles disponibles pour ce terrain. Assurances et garanties du constructeur (RC professionnelle, décennale, dommage ouvrage, garantie de remboursement de l'acompte, livraison à prix et délai convenu) : https://www.maisons-france-confort.fr/mentions-legales/. HEXAOM Services est enregistré auprès de l'ORIAS en tant que Courtier en financement, Niveau 1, sous le numéro 14001345.Agence Maisons France Confort de Aucamville (31140)
- Téléphone :
- 05 34 43 84 38
- Adressse :
- 17 chemin Bellegarrigues
31140 Aucamville, France
