Maison neuve à
Beuvry
(62660) Référence :
FW2478641_2
Prix du projet : Maison avec Terrain
prix 240 000 €
- 5 pièces
- 3 chambres
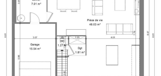
- Surface maison 83 m2
VENTE d'une maison T5 (83 m²) à Beuvry
QUARTIER RECHERCHÉ - MAISON 5 PIÈCES NEUVE
À vendre : à deux pas de la gare, située dans un quartier recherché de Beuvry (62660), nous vous présentons cette maison de 5 pièces de plain-pied de 83 m².
Conçue de plain-pied, elle compte trois chambres, une cuisine et une salle de bains. Cette maison est neuve.
Le terrain du bien est de 440 m².
Cette maison se trouve dans un secteur convoité. Il y a l'École Maternelle Léo Lagrange et l'École Élémentaire Jean de la Fontaine à moins de 10 minutes à pied. Niveau transports, on trouve la gare Beuvry lès Béthune juste à côté. L'autoroute A26 est accessible à 5 km et Lille se situe à 27 km. Il y a une bibliothèque et deux commerces à proximité du logement.
Elle est proposée à l'achat pour 240 000 €.
Contactez notre agence (Franck WALRYCK : 06-80-22-74-64) pour toute question sur la maison. Maisons France Confort Béthune est là pour vous accompagner dans tous vos projets immobiliers.
Mentions légales
Terrain proposé par un partenaire foncier selon disponibilités et autorisation de publicité au prix de 56 000 €. Hors droit d'enregistrement et frais de notaire. Terrain + Maison proposés au prix de 240 000 € (Hors branchements et raccordements, papiers peints, peintures, revêtement de sol dans les chambres. Tarif modifiable sans préavis). Etiquette énergie : A. Différents modèles disponibles pour ce terrain. Assurances et garanties du constructeur (RC professionnelle, décennale, dommage ouvrage, garantie de remboursement de l'acompte, livraison à prix et délai convenu) : https://www.maisons-france-confort.fr/mentions-legales/. HEXAOM Services est enregistré auprès de l'ORIAS en tant que Courtier en financement, Niveau 1, sous le numéro 14001345.Agence Maisons France Confort de Béthune (62400)
- Téléphone :
- 03 21 02 07 45
- Adressse :
- 112 bd Jean Moulin
62400 Béthune, France
