Maison neuve à
Beuvry
(62660) Référence :
FW2478641_4
Prix du projet : Maison avec Terrain
prix 250 000 €
- 5 pièces
- 3 chambres
- Surface maison 95 m2
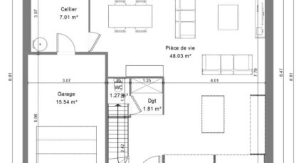
VENTE d'une maison de 5 pièces (95 m²) à Beuvry
QUARTIER RECHERCHÉ - MAISON 5 PIÈCES NEUVE
À quelques minutes de la gare, à vendre dans un quartier convoité de Beuvry (62660), votre agence Maisons France Confort Béthune est heureuse de vous proposer cette maison de 5 pièces de 95 m². Elle propose trois chambres, une cuisine et une salle de bains.
Le terrain du bien s'étend sur 440 m².
Cette maison compte 2 niveaux. Elle est neuve.
Cette maison se trouve dans un secteur recherché. L'École Maternelle Léo Lagrange et l'École Élémentaire Jean de la Fontaine sont implantées à moins de 10 minutes à pied. Côté transports en commun, il y a la gare Beuvry lès Béthune à quelques pas de la maison. L'autoroute A26 est accessible à 5 km et Lille se situe à 27 km. On trouve une bibliothèque et deux commerces à proximité.
Elle est proposée à l'achat pour 250 000 €.
Contactez notre constructeur (Franck WALRYCK : 06-80-22-74-64) pour plus d'informations sur la maison.
Mentions légales
Terrain proposé par un partenaire foncier selon disponibilités et autorisation de publicité au prix de 56 000 €. Hors droit d'enregistrement et frais de notaire. Terrain + Maison proposés au prix de 250 000 € (Hors branchements et raccordements, papiers peints, peintures, revêtement de sol dans les chambres. Tarif modifiable sans préavis). Etiquette énergie : A. Différents modèles disponibles pour ce terrain. Assurances et garanties du constructeur (RC professionnelle, décennale, dommage ouvrage, garantie de remboursement de l'acompte, livraison à prix et délai convenu) : https://www.maisons-france-confort.fr/mentions-legales/. HEXAOM Services est enregistré auprès de l'ORIAS en tant que Courtier en financement, Niveau 1, sous le numéro 14001345.Agence Maisons France Confort de Béthune (62400)
- Téléphone :
- 03 21 02 07 45
- Adressse :
- 112 bd Jean Moulin
62400 Béthune, France
