Maison neuve à
Blennes
(77940) Référence :
CY2435496_1
Prix du projet : Maison avec Terrain
prix 217 000 €
- 5 pièces
- 3 chambres
- Surface maison 90 m2
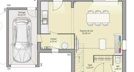
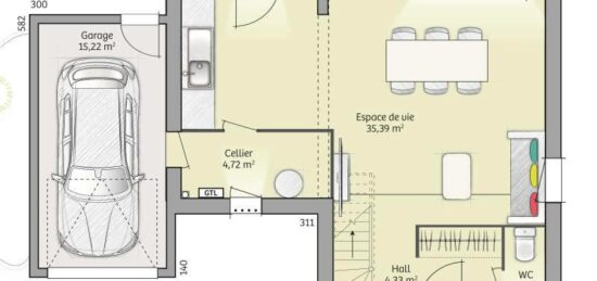
Maison de 5 pièces (90 m²) à vendre à Blennes
MAISON 5 PIÈCES NEUVE - PROCHE DE SENS
En vente : à deux pas de Sens, laissez vous charmer par cette maison de 5 pièces de 90 m² et de 1 306 m² de terrain à Blennes (77940).
Cette maison compte 2 niveaux. Elle se divise en trois chambres, une cuisine et une salle de bains. La maison est neuve.
L'École Primaire Antoine de Saint-Exupéry est implantée à moins de 10 minutes à pied.
Elle est proposée à l'achat pour 217 000 €.
Contactez notre agence (YAHIAOUI Cedric : 06-66-57-00-63) pour toute information sur la maison, sur les modalités de vente ou sur les démarches à suivre. Maisons France Confort Magny-le-Hongre est là pour vous accompagner dans tous vos projets immobiliers.
Annonce proposée par un Agent Commercial Partenaire.
Mentions légales
Terrain proposé par un partenaire foncier selon disponibilités et autorisation de publicité au prix de 57 000 €. Hors droit d'enregistrement et frais de notaire. Terrain + Maison proposés au prix de 217 000 € (Hors branchements et raccordements, papiers peints, peintures, revêtement de sol dans les chambres. Tarif modifiable sans préavis). Etiquette énergie : A. Différents modèles disponibles pour ce terrain. Assurances et garanties du constructeur (RC professionnelle, décennale, dommage ouvrage, garantie de remboursement de l'acompte, livraison à prix et délai convenu) : https://www.maisons-france-confort.fr/mentions-legales/. HEXAOM Services est enregistré auprès de l'ORIAS en tant que Courtier en financement, Niveau 1, sous le numéro 14001345.Agence Maisons France Confort de Magny-le-Hongre (77700)
- Téléphone :
- 01 84 80 92 96
- Adressse :
- 11 rue de Courtalin
77700 Magny-le-Hongre, France
