Maison neuve à
Montmachoux
(77940) Référence :
CY2436058_1
Prix du projet : Maison avec Terrain
prix 220 000 €
- 5 pièces
- 3 chambres
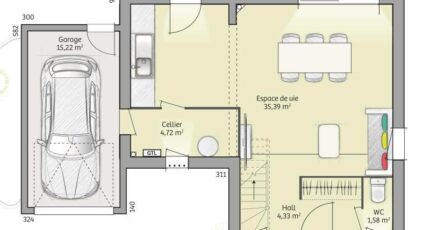
- Surface maison 90 m2
Montmachoux : maison de 5 pièces (90 m²) à vendre
MAISON 5 PIÈCES NEUVE - PROCHE DE SENS
En vente : proche de la gare de Montereau (Paris à 60 min avec le Transilien R), à Montmachoux (77940), nous vous présentons cette maison de 5 pièces de 90 m². Son intérieur offre trois chambres, une cuisine et une salle de bains.
Le terrain de cette maison s'étend sur 507 m².
C'est une maison de 2 niveaux. Elle est neuve.
Il y a des écoles de tous niveaux (de la maternelle au lycée) à moins de 10 minutes en voiture, tout comme trois crèches à moins de 10 minutes à pied. Côté transports en commun, on trouve trois gares (Villeneuve-la-Guyard, Montereau et La Grande-Paroisse) à moins de 10 minutes en voiture. On trouve des tennis, des bibliothèques, un bowling, un bassin de natation, des commerces, des supermarchés, des boulangeries, une supérette et des épiceries à quelques minutes. Le marché Rue Durocher a lieu chaque jeudi matin.
Son prix de vente est de 220 000 €.
N'hésitez pas à prendre contact avec notre agence (Cedric YAHIAOUI : 06-66-57-00-63) pour obtenir de plus amples informations sur cette maison.
Annonce proposée par un Agent Commercial Partenaire.
Mentions légales
Terrain proposé par un partenaire foncier selon disponibilités et autorisation de publicité au prix de 60 000 €. Hors droit d'enregistrement et frais de notaire. Terrain + Maison proposés au prix de 220 000 € (Hors branchements et raccordements, papiers peints, peintures, revêtement de sol dans les chambres. Tarif modifiable sans préavis). Etiquette énergie : A. Différents modèles disponibles pour ce terrain. Assurances et garanties du constructeur (RC professionnelle, décennale, dommage ouvrage, garantie de remboursement de l'acompte, livraison à prix et délai convenu) : https://www.maisons-france-confort.fr/mentions-legales/. HEXAOM Services est enregistré auprès de l'ORIAS en tant que Courtier en financement, Niveau 1, sous le numéro 14001345.Agence Maisons France Confort de Magny-le-Hongre (77700)
- Téléphone :
- 01 84 80 92 96
- Adressse :
- 11 rue de Courtalin
77700 Magny-le-Hongre, France
