Maison neuve à
Bordeaux (33000) Référence : TC2429925_1

Prix du projet : Maison avec Terrain

prix 830 000 €

  • 5 pièces
  • 4 chambres
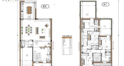
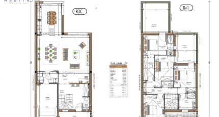
  • Surface maison 143 m2

Sur ce terrain idéalement situé à Caudéran, découvrez un projet de construction d'une maison contemporaine de 143 m² habitables avec garage de 20 m², pensé pour offrir confort, lumière et modernité.

Cette maison familiale propose une belle pièce de vie lumineuse avec larges ouvertures sur le jardin, favorisant une connexion harmonieuse entre intérieur et extérieur. La distribution intérieure est optimisée pour un quotidien fluide et agréable.

Le projet comprend 4 chambres, dont une suite parentale possible en rez-de-chaussée, ainsi que 2 salles de bain aux prestations soignées. Les espaces sont conçus pour allier fonctionnalité et qualité de vie.

La maison intègre des équipements de domotique pour un pilotage simplifié du chauffage, des volets et de l'éclairage, garantissant confort et performance énergétique. Matériaux de qualité, isolation performante et conception moderne assurent un cadre de vie durable.

Le garage de 20 m² complète l'ensemble avec un espace de stationnement et de rangement appréciable.
Contact : Thomas Carré : SO9 Habitat : O637033308

Mentions légales

Terrain proposé par un partenaire foncier selon disponibilité dans le cadre d’un projet de construction avec So'9 Habitat. Les descriptions, photographies, surfaces et prix illustrant l'annonce sont fournies à titre indicatif et ne sont pas contractuels. Non soumis au DPE. Différents modèles disponibles.

Contactez l'agence de Le Bouscat

05 56 04 87 69

    * Champs obligatoires

    Vos informations sont traitées par HEXAOM et transmises à un conseiller commercial qui vous contactera afin de répondre à votre demande. Les plans et images présentés sur notre site sont la propriété d’HEXAOM et ne peuvent pas être reproduits sans son accord. Pour retrouver notre politique de protection des données personnelles et exercer vos droits conformément à la « loi informatique et liberté » cliquez-ici.