Maison neuve à
Le Bouscat (33110) Référence : TC2424557_1

Prix du projet : Maison avec Terrain

prix 1 050 000 €

  • 5 pièces
  • 4 chambres
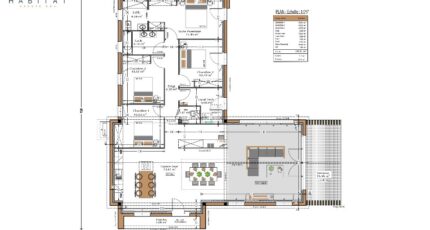
  • Surface maison 145 m2

Sur un terrain situé dans un environnement résidentiel privilégié, découvrez un projet de maison individuelle de plain-pied de 145 m² habitables, à l'architecture très contemporaine et aux lignes élégantes, conçue pour offrir un cadre de vie lumineux et confortable.

La maison s'organise autour d'une vaste pièce de vie baignée de lumière grâce à de larges ouvertures sur le jardin et les extérieurs, favorisant une belle continuité dedans-dehors. L'espace nuit propose 4 chambres bien réparties, dont une suite parentale, ainsi que 2 salles de bain aux prestations modernes.

Pensée pour le confort d'aujourd'hui, la maison intègre des équipements de domotique permettant la gestion intelligente des volets, du chauffage et de l'éclairage. Un projet alliant esthétique contemporaine, fonctionnalité et qualité de vie, idéal pour une famille souhaitant une maison clé en main aux prestations actuelles.
Contact : Thomas Carré : SO9 Habitat : O637033308

Mentions légales

Terrain proposé par un partenaire foncier selon disponibilité dans le cadre d’un projet de construction avec So'9 Habitat. Les descriptions, photographies, surfaces et prix illustrant l'annonce sont fournies à titre indicatif et ne sont pas contractuels. Non soumis au DPE. Différents modèles disponibles.

Contactez l'agence de Le Bouscat

05 56 04 87 69

    * Champs obligatoires

    Vos informations sont traitées par HEXAOM et transmises à un conseiller commercial qui vous contactera afin de répondre à votre demande. Les plans et images présentés sur notre site sont la propriété d’HEXAOM et ne peuvent pas être reproduits sans son accord. Pour retrouver notre politique de protection des données personnelles et exercer vos droits conformément à la « loi informatique et liberté » cliquez-ici.