Maison neuve à
Boutigny-sur-Essonne (91820) Référence : AD2477571_1

Prix du projet : Maison avec Terrain

prix 302 000 €

  • 5 pièces
  • 4 chambres
  • Surface maison 101 m2

VENTE : maison de 5 pièces (101 m²) à Boutigny-sur-Essonne
PROCHE GARE - MAISON 5 PIÈCES NEUVE
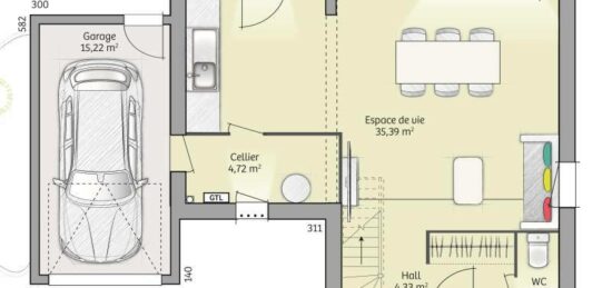
En vente : à deux pas de la gare, votre agence Maisons France Confort Nemours est heureuse de vous présenter, dans Boutigny-sur-Essonne (91820), proche de la gare, cette maison de 5 pièces de plain-pied de 101 m² et de 992 m² de terrain.
Elle dispose de quatre chambres, d'une cuisine et d'une salle de bains. Cette maison est neuve.
L'École Maternelle Pierre Siriex et l'École Élémentaire les Singes Verts se trouvent à moins de 10 minutes à pied. Niveau transports en commun, il y a la station de RER Boutigny-Sur-Essonne (ligne D) ainsi que la gare Boutigny-sur-Essonne à quelques pas de la maison. On trouve un tennis, deux commerces et un bureau de poste à quelques minutes du bien.
Elle est proposée à l'achat pour 302 000 €.
Contactez notre agence (DELOHEN Anne : 06-30-93-26-67) pour plus de renseignements sur la maison, sur les démarches à suivre ou sur les modalités de vente.

Annonce proposée par un Agent Commercial Partenaire.

Mentions légales

Terrain proposé par un partenaire foncier selon disponibilités et autorisation de publicité au prix de 115 000 €. Hors droit d'enregistrement et frais de notaire. Terrain + Maison proposés au prix de 302 000 € (Hors branchements et raccordements, papiers peints, peintures, revêtement de sol dans les chambres. Tarif modifiable sans préavis). Etiquette énergie : A. Différents modèles disponibles pour ce terrain. Assurances et garanties du constructeur (RC professionnelle, décennale, dommage ouvrage, garantie de remboursement de l'acompte, livraison à prix et délai convenu) : https://www.maisons-france-confort.fr/mentions-legales/. HEXAOM Services est enregistré auprès de l'ORIAS en tant que Courtier en financement, Niveau 1, sous le numéro 14001345.

Contactez l'agence de Nemours

01 64 28 58 32

    * Champs obligatoires

    Vos informations sont traitées par HEXAOM et transmises à un conseiller commercial qui vous contactera afin de répondre à votre demande. Les plans et images présentés sur notre site sont la propriété d’HEXAOM et ne peuvent pas être reproduits sans son accord. Pour retrouver notre politique de protection des données personnelles et exercer vos droits conformément à la « loi informatique et liberté » cliquez-ici.