Maison neuve à
Boutigny-sur-Essonne (91820) Référence : AD2477571_3

Prix du projet : Maison avec Terrain

prix 299 000 €

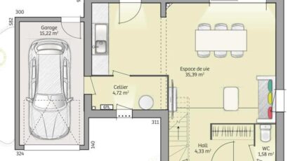
  • 5 pièces
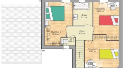
  • 3 chambres
  • Surface maison 90 m2

Boutigny-sur-Essonne : maison T5 (90 m²) à vendre
PROCHE GARE - MAISON 5 PIÈCES NEUVE
En vente : à quelques minutes de la gare, Maisons France Confort Nemours vous présente cette maison de 5 pièces de 90 m² proche de la gare de Boutigny-sur-Essonne (91820).
Cette maison comporte 2 niveaux. Son intérieur est composé de trois chambres, d'une cuisine et d'une salle de bains. La maison est neuve.
Le terrain de la propriété est de 992 m².
Il y a l'École Maternelle Pierre Siriex et l'École Élémentaire les Singes Verts à moins de 10 minutes à pied. Niveau transports, on trouve la station de RER Boutigny-Sur-Essonne (ligne D) ainsi que la gare Boutigny-sur-Essonne à proximité. On trouve un tennis, deux commerces et un bureau de poste dans les environs.
Son prix de vente est de 299 000 €.
Contactez Anne DELOHEN (06-30-93-26-67) pour toute question sur le bien ou sur les démarches à suivre. Concrétisez vos projets immobiliers avec Maisons France Confort Nemours.

Annonce proposée par un Agent Commercial Partenaire.

Mentions légales

Terrain proposé par un partenaire foncier selon disponibilités et autorisation de publicité au prix de 115 000 €. Hors droit d'enregistrement et frais de notaire. Terrain + Maison proposés au prix de 299 000 € (Hors branchements et raccordements, papiers peints, peintures, revêtement de sol dans les chambres. Tarif modifiable sans préavis). Etiquette énergie : A. Différents modèles disponibles pour ce terrain. Assurances et garanties du constructeur (RC professionnelle, décennale, dommage ouvrage, garantie de remboursement de l'acompte, livraison à prix et délai convenu) : https://www.maisons-france-confort.fr/mentions-legales/. HEXAOM Services est enregistré auprès de l'ORIAS en tant que Courtier en financement, Niveau 1, sous le numéro 14001345.

Contactez l'agence de Nemours

01 64 28 58 32

    * Champs obligatoires

    Vos informations sont traitées par HEXAOM et transmises à un conseiller commercial qui vous contactera afin de répondre à votre demande. Les plans et images présentés sur notre site sont la propriété d’HEXAOM et ne peuvent pas être reproduits sans son accord. Pour retrouver notre politique de protection des données personnelles et exercer vos droits conformément à la « loi informatique et liberté » cliquez-ici.