Maison neuve à
Bréau
(77720) Référence :
DC2496346_2
Prix du projet : Maison avec Terrain
prix 328 605 €
- 5 pièces
- 3 chambres
- Surface maison 90 m2
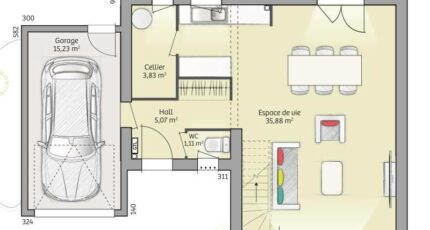
MAISON NEUVE À BRÉAU DE 90 M² AVEC 5 PIÈCES
PRÉSENTATION DU BIEN
Cette maison neuve à construire située à Bréau offre une surface habitable de 90 m² sur un terrain de 592 m².
Elle comprend trois chambres, une cuisine et une salle de bains avec baignoire.
La maison est construite sur deux niveaux.
Le terrain de 592 m² offre un espace extérieur à aménager selon vos envies.
ENVIRONNEMENT
Bréau est une commune résidentielle calme située à proximité de Melun, à environ 17 kilomètres.
Vous trouverez un arrêt de bus nommé Auberge à moins de 10 minutes à pied, desservi par trois lignes (3124, 3136, 3247).
L'autoroute A5 se trouve à 7 kilomètres, facilitant vos déplacements en voiture.
Un restaurant se situe à proximité, à moins de 10 minutes à pied.
Commerces sont également présents autour du bien.
NOUS CONTACTER
Cette maison est proposée à la vente au prix de 328 605 euros.
Pour toute information complémentaire, contactez David CORDIER de l'agence Maisons France Confort Melun au 06-10-79-38-15.
Construisez votre maison avec Maisons France Confort et réalisez votre projet à Bréau dès maintenant.
Annonce proposée par un Agent Commercial Partenaire.
Mentions légales
Terrain proposé par un partenaire foncier selon disponibilités et autorisation de publicité au prix de 126 000 €. Hors droit d'enregistrement et frais de notaire. Terrain + Maison proposés au prix de 328 605 € (Hors branchements et raccordements, papiers peints, peintures, revêtement de sol dans les chambres. Tarif modifiable sans préavis). Etiquette énergie : A. Différents modèles disponibles pour ce terrain. Assurances et garanties du constructeur (RC professionnelle, décennale, dommage ouvrage, garantie de remboursement de l'acompte, livraison à prix et délai convenu) : https://www.maisons-france-confort.fr/mentions-legales/. HEXAOM Services est enregistré auprès de l'ORIAS en tant que Courtier en financement, Niveau 1, sous le numéro 14001345.Agence Maisons France Confort de Melun (77000)
- Téléphone :
- 01 64 14 43 20
- Adressse :
- 3 route de Nangis
77000 Melun, France