Maison neuve à
La Chapelle-Gauthier
(77720) Référence :
FA2496291_2
Prix du projet : Maison avec Terrain
prix 282 605 €
- 5 pièces
- 3 chambres
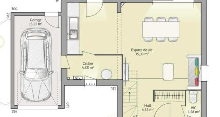
- Surface maison 90 m2
MAISON NEUVE À CHAILLY-EN-BIÈRE 90 M² 5 PIÈCES
PRÉSENTATION DU BIEN
Découvrez cette maison neuve à construire située à Chailly-en-Bière. Elle offre une surface habitable de 90 m² sur un terrain de 385 m², parfaite pour réaliser votre projet de vie.
Cette maison comprend trois chambres et une salle de bains avec baignoire. Elle dispose également d'une cuisine pour préparer vos repas. Vous apprécierez l'espace et le confort que procure cette construction à deux niveaux.
Le terrain de 385 m² apporte un espace extérieur généreux, offrant des possibilités pour aménager un jardin ou d'autres aménagements extérieurs selon vos envies.
ENVIRONNEMENT
Le bien se situe dans la commune de Chailly-en-Bière. À proximité, vous trouverez la ville d'Évry-Courcouronnes à 22 km. Plusieurs lignes de bus, notamment les lignes 3425, 3426, 3423, 3421 et 3429, desservent les environs à quelques minutes à pied. L'école élémentaire Rosa Bonheur se trouve à seulement quelques minutes de marche. Des commerces sont également accessibles aux alentours pour vos besoins quotidiens.
NOUS CONTACTER
Cette maison est proposée à la vente pour un prix de 282 605 euros, honoraires et charges comprises.
Pour plus d'informations et pour concrétiser votre projet de construction, n'hésitez pas à contacter Franck ALANOE de l'agence Maisons France Confort Melun. Vous pouvez le joindre au 06-27-23-96-64. Construisez et réalisez votre maison avec le soutien d'un professionnel à votre écoute.
Annonce proposée par un Agent Commercial Partenaire.
Mentions légales
Terrain proposé par un partenaire foncier selon disponibilités et autorisation de publicité au prix de 110 000 €. Hors droit d'enregistrement et frais de notaire. Terrain + Maison proposés au prix de 282 605 € (Hors branchements et raccordements, papiers peints, peintures, revêtement de sol dans les chambres. Tarif modifiable sans préavis). Etiquette énergie : A. Différents modèles disponibles pour ce terrain. Assurances et garanties du constructeur (RC professionnelle, décennale, dommage ouvrage, garantie de remboursement de l'acompte, livraison à prix et délai convenu) : https://www.maisons-france-confort.fr/mentions-legales/. HEXAOM Services est enregistré auprès de l'ORIAS en tant que Courtier en financement, Niveau 1, sous le numéro 14001345.Agence Maisons France Confort de Melun (77000)
- Téléphone :
- 01 64 14 43 20
- Adressse :
- 3 route de Nangis
77000 Melun, France