Maison neuve à
Bresles (60510) Référence : FBBresles62_1

Prix du projet : Maison avec Terrain

prix 232 000 €

  • 6 pièces
  • 4 chambres
  • Surface maison 100 m2

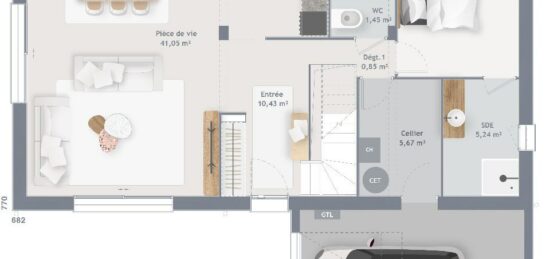
VENTE d'une maison F6 (100 m²) à Bresles
IDÉALEMENT SITUÉE - MAISON 6 PIÈCES NEUVE
À vendre à deux pas de Beauvais, venez découvrir cette maison de 6 pièces de 100 m² idéalement située dans Bresles (60510).
Il s'agit d'une maison de 2 niveaux. Son intérieur se divise en quatre chambres, une cuisine et une salle de bains. Cette maison est neuve.
Le terrain de la propriété s'étend sur 450 m².
La maison se situe dans un secteur prisé. L'École Élémentaire Groupe Scolaire Simone Veil, l'École Maternelle la Venue et le Collège Condorcet se trouvent à moins de 10 minutes à pied. Niveau transports en commun, il y a cinq gares à moins de 10 minutes en voiture. L'autoroute A16 et la nationale N31 sont accessibles à moins de 9 km. On trouve un bassin de natation, un tennis, une bibliothèque, des commerces, un bureau de poste et une épicerie à quelques minutes. Enfin, le marché Place du 11 novembre a lieu tous les jeudis matin.
Elle est proposée à l'achat pour 232 000 €.
Contactez notre agence (Fabrice BONELLO : 06-09-50-50-09) pour plus d'informations sur la maison.

Mentions légales

Terrain proposé par un partenaire foncier selon disponibilités et autorisation de publicité au prix de 66 000 €. Hors droit d'enregistrement et frais de notaire. Terrain + Maison proposés au prix de 232 000 € (Hors branchements et raccordements, papiers peints, peintures, revêtement de sol dans les chambres. Tarif modifiable sans préavis). Etiquette énergie : A. Différents modèles disponibles pour ce terrain. Assurances et garanties du constructeur (RC professionnelle, décennale, dommage ouvrage, garantie de remboursement de l'acompte, livraison à prix et délai convenu) : https://www.maisons-france-confort.fr/mentions-legales/. HEXAOM Services est enregistré auprès de l'ORIAS en tant que Courtier en financement, Niveau 1, sous le numéro 14001345.

Contactez l'agence de Beauvais

03 44 04 40 04

    * Champs obligatoires

    Vos informations sont traitées par HEXAOM et transmises à un conseiller commercial qui vous contactera afin de répondre à votre demande. Les plans et images présentés sur notre site sont la propriété d’HEXAOM et ne peuvent pas être reproduits sans son accord. Pour retrouver notre politique de protection des données personnelles et exercer vos droits conformément à la « loi informatique et liberté » cliquez-ici.