Maison neuve à
Breteuil (60120) Référence : FBbreteuil96_10

Prix du projet : Maison avec Terrain

prix 221 000 €

  • 5 pièces
  • 3 chambres
  • Surface maison 80 m2

VENTE d'une maison de 5 pièces (80 m²) à Breteuil
CENTRE-VILLE - MAISON 5 PIÈCES NEUVE
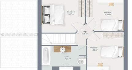
À vendre à 29 km d'Amiens, à Breteuil (60120), en centre-ville, nous vous présentons cette maison de 5 pièces de 80 m². Elle compte trois chambres, une cuisine et une salle de bains.
Le terrain de la maison est de 1 237 m².
Cette maison possède 2 niveaux. Elle est neuve.
Cinq établissements scolaires se trouvent à moins de 10 minutes à pied. Niveau transports en commun, il y a deux gares (Breteuil et La Faloise) à moins de 10 minutes en voiture. On trouve une bibliothèque, deux tennis, un bassin de natation, trois boulangeries, des commerces, une supérette, trois boucheries-charcuteries et un bureau de poste dans les environs. Le marché Centre-Ville a lieu tous les mercredis après-midi.
Son prix de vente est de 221 000 €.
Contactez Fabrice BONELLO (tél : 06-09-50-50-09) pour tout renseignement sur la maison ou sur les démarches à suivre.

Mentions légales

Terrain proposé par un partenaire foncier selon disponibilités et autorisation de publicité au prix de 54 900 €. Hors droit d'enregistrement et frais de notaire. Terrain + Maison proposés au prix de 221 000 € (Hors branchements et raccordements, papiers peints, peintures, revêtement de sol dans les chambres. Tarif modifiable sans préavis). Etiquette énergie : A. Différents modèles disponibles pour ce terrain. Assurances et garanties du constructeur (RC professionnelle, décennale, dommage ouvrage, garantie de remboursement de l'acompte, livraison à prix et délai convenu) : https://www.maisons-france-confort.fr/mentions-legales/. HEXAOM Services est enregistré auprès de l'ORIAS en tant que Courtier en financement, Niveau 1, sous le numéro 14001345.

Contactez l'agence de Beauvais

03 44 04 40 04

    * Champs obligatoires

    Vos informations sont traitées par HEXAOM et transmises à un conseiller commercial qui vous contactera afin de répondre à votre demande. Les plans et images présentés sur notre site sont la propriété d’HEXAOM et ne peuvent pas être reproduits sans son accord. Pour retrouver notre politique de protection des données personnelles et exercer vos droits conformément à la « loi informatique et liberté » cliquez-ici.