Maison neuve à
Breteuil
(60120) Référence :
FBbreteuil96_5
Prix du projet : Maison avec Terrain
prix 219 000 €
- 6 pièces
- 4 chambres
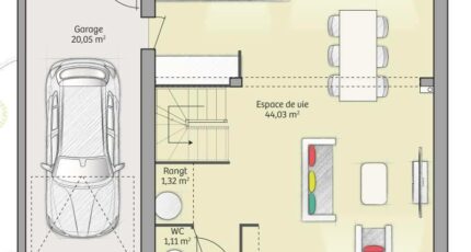
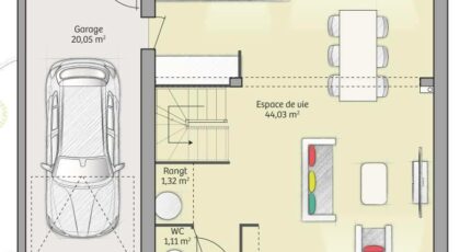
- Surface maison 91 m2
Breteuil : maison T6 (91 m²) en vente
CENTRE-VILLE - MAISON 6 PIÈCES NEUVE
À quelques kilomètres d'Amiens, notre agence Maisons France Confort Beauvais est heureuse de vous proposer cette maison de 6 pièces de 91 m² et de 1 237 m² de terrain en vente en plein coeur de Breteuil (60120). Son intérieur compte quatre chambres, une cuisine et une salle de bains.
Il s'agit d'une maison de 2 niveaux. Elle est neuve.
Il y a cinq établissements scolaires à moins de 10 minutes à pied. Niveau transports en commun, on trouve les gares Breteuil et La Faloise à moins de 10 minutes en voiture. Il y a une bibliothèque, deux tennis, un bassin de natation, trois boulangeries, des commerces, une supérette, un bureau de poste et trois boucheries-charcuteries dans les environs. Le marché Centre-Ville a lieu chaque mercredi après-midi.
Il est proposé à l'achat pour 219 000 €.
Contactez Fabrice BONELLO (tél : 06-09-50-50-09) pour obtenir de plus amples renseignements sur la maison.
Mentions légales
Terrain proposé par un partenaire foncier selon disponibilités et autorisation de publicité au prix de 54 900 €. Hors droit d'enregistrement et frais de notaire. Terrain + Maison proposés au prix de 219 000 € (Hors branchements et raccordements, papiers peints, peintures, revêtement de sol dans les chambres. Tarif modifiable sans préavis). Etiquette énergie : A. Différents modèles disponibles pour ce terrain. Assurances et garanties du constructeur (RC professionnelle, décennale, dommage ouvrage, garantie de remboursement de l'acompte, livraison à prix et délai convenu) : https://www.maisons-france-confort.fr/mentions-legales/. HEXAOM Services est enregistré auprès de l'ORIAS en tant que Courtier en financement, Niveau 1, sous le numéro 14001345.Agence Maisons France Confort de Beauvais (60000)
- Téléphone :
- 03 44 04 40 04
- Adressse :
- 42 rue Pierre Jacoby
60000 Beauvais, France
