Maison neuve à
Bretteville-l'Orgueilleuse
(14740) Référence :
JS2484818_2
Prix du projet : Maison avec Terrain
prix 249 000 €
- 7 pièces
- 5 chambres
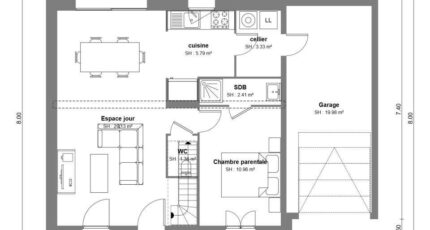
- Surface maison 102 m2
Maison F7 (102 m²) à vendre à Bretteville-l'Orgueilleuse
IDÉALEMENT SITUÉE - MAISON 7 PIÈCES NEUVE
En vente à quelques kilomètres de Caen, nous sommes ravis de vous présenter, idéalement située dans Bretteville-l'Orgueilleuse (14740), cette maison de 7 pièces de 102 m² et de 333 m² de terrain. Son intérieur comporte cinq chambres, une cuisine et deux salles de bains.
Il s'agit d'une maison de 2 niveaux. Elle est neuve.
Cette maison se trouve dans un secteur convoité. Il y a l'École Maternelle les Lilas et l'École Élémentaire les Coquelicots à moins de 10 minutes à pied. Côté transports en commun, on trouve la gare Bretteville-Norrey dans les alentours. La nationale N13 est accessible à 1 km. Il y a un tennis, une bibliothèque, quatre commerces, une boucherie-charcuterie et un bureau de poste à proximité du bien.
Son prix de vente est de 249 000 €.
Contactez notre agence (HUE Emilie : 06-29-81-46-66) pour toute information sur la maison, sur les démarches à suivre ou sur les modalités de vente. Faites de vos projets immobiliers une réalité avec Maisons France Confort Bayeux.
Annonce proposée par un Agent Commercial Partenaire.
Mentions légales
Terrain proposé par un partenaire foncier selon disponibilités et autorisation de publicité au prix de 79 000 €. Hors droit d'enregistrement et frais de notaire. Terrain + Maison proposés au prix de 249 000 € (Hors branchements et raccordements, papiers peints, peintures, revêtement de sol dans les chambres. Tarif modifiable sans préavis). Etiquette énergie : A. Différents modèles disponibles pour ce terrain. Assurances et garanties du constructeur (RC professionnelle, décennale, dommage ouvrage, garantie de remboursement de l'acompte, livraison à prix et délai convenu) : https://www.maisons-france-confort.fr/mentions-legales/. HEXAOM Services est enregistré auprès de l'ORIAS en tant que Courtier en financement, Niveau 1, sous le numéro 14001345.Agence Maisons France Confort de Bayeux (14400)
- Téléphone :
- 02 31 51 20 91
- Adressse :
- 2, rue Saint Loup
14400 Bayeux, France
