Maison neuve à
Thaon
(14610) Référence :
JS2485102_1
Prix du projet : Maison avec Terrain
prix 249 000 €
- 7 pièces
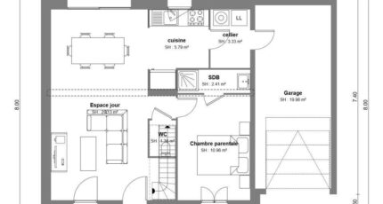
- 5 chambres
- Surface maison 102 m2
Thaon : maison F7 (102 m²) à vendre
IDÉALEMENT SITUÉE - MAISON 7 PIÈCES NEUVE
À 10 km de Caen, nous sommes heureux de vous proposer à vendre, idéalement située dans Thaon (14610), cette maison de 7 pièces de 102 m². Elle offre cinq chambres, une cuisine et deux salles de bains.
Le terrain de la propriété s'étend sur 377 m².
Cette maison compte 2 niveaux. Elle est neuve.
Cette maison est située dans un quartier prisé. Il y a l'École Primaire Yvonne Guégan à moins de 10 minutes à pied. Niveau transports en commun, on trouve deux gares (Saint-Germain-en-Laye Bel-Air-Fourqueux T13 et Bretteville-Norrey) à moins de 10 minutes en voiture. Les nationales N13 et N814 sont accessibles à moins de 8 km. Il y a un tennis et une épicerie dans les environs.
Son prix de vente est de 249 000 €.
Prenez contact avec Emilie HUE (06-29-81-46-66) pour tout renseignement sur la maison, sur les démarches à suivre ou sur les modalités de vente.
Annonce proposée par un Agent Commercial Partenaire.
Mentions légales
Terrain proposé par un partenaire foncier selon disponibilités et autorisation de publicité au prix de 79 000 €. Hors droit d'enregistrement et frais de notaire. Terrain + Maison proposés au prix de 249 000 € (Hors branchements et raccordements, papiers peints, peintures, revêtement de sol dans les chambres. Tarif modifiable sans préavis). Etiquette énergie : A. Différents modèles disponibles pour ce terrain. Assurances et garanties du constructeur (RC professionnelle, décennale, dommage ouvrage, garantie de remboursement de l'acompte, livraison à prix et délai convenu) : https://www.maisons-france-confort.fr/mentions-legales/. HEXAOM Services est enregistré auprès de l'ORIAS en tant que Courtier en financement, Niveau 1, sous le numéro 14001345.Agence Maisons France Confort de Bayeux (14400)
- Téléphone :
- 02 31 51 20 91
- Adressse :
- 2, rue Saint Loup
14400 Bayeux, France
