Maison neuve à
Bréval
(78980) Référence :
MB2392567_1
Prix du projet : Maison avec Terrain
prix 298 000 €
- 6 pièces
- 4 chambres
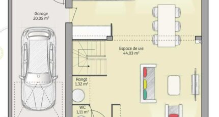
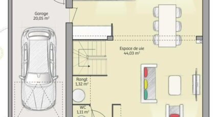
- Surface maison 91 m2
Maison de 6 pièces (91 m²) en vente à Bréval
EMPLACEMENT PRIVILÉGIÉ - MAISON 6 PIÈCES NEUVE
À vendre : située à deux pas d'Évreux, laissez vous charmer par cette maison de 6 pièces de 91 m² et de 433 m² de terrain bénéficiant d'un emplacement d'exception dans Bréval (78980). Elle propose quatre chambres, une cuisine et une salle de bains.
Cette maison comporte 2 niveaux. Elle est neuve.
Cette maison se situe dans un quartier prisé. Le Collège les Nénuphars, l'École Élémentaire les Mille Couleurs et l'École Maternelle la Ribambelle sont implantés à moins de 10 minutes à pied. Niveau transports, on trouve la gare Bréval à quelques pas de la maison. Il y a un tennis, des commerces, une boulangerie, un supermarché, un bureau de poste et deux boucheries-charcuteries à proximité.
Elle est à vendre pour la somme de 298 000 €.
Prenez contact avec Mickael BESNARD (tél : 06-15-50-56-87) pour plus d'informations sur la maison, sur les démarches à suivre ou sur les modalités de vente. Maisons France Confort Vernon vous accompagne à toutes les étapes de votre projet et dans tous vos projets immobiliers.
Annonce proposée par un Agent Commercial Partenaire.
Mentions légales
Terrain proposé par un partenaire foncier selon disponibilités et autorisation de publicité au prix de 125 000 €. Hors droit d'enregistrement et frais de notaire. Terrain + Maison proposés au prix de 298 000 € (Hors branchements et raccordements, papiers peints, peintures, revêtement de sol dans les chambres. Tarif modifiable sans préavis). Etiquette énergie : A. Différents modèles disponibles pour ce terrain. Assurances et garanties du constructeur (RC professionnelle, décennale, dommage ouvrage, garantie de remboursement de l'acompte, livraison à prix et délai convenu) : https://www.maisons-france-confort.fr/mentions-legales/. HEXAOM Services est enregistré auprès de l'ORIAS en tant que Courtier en financement, Niveau 1, sous le numéro 14001345.Agence Maisons France Confort de Vernon (27200)
- Téléphone :
- 02 32 51 45 05
- Adressse :
- 38 rue Carnot
27200 Vernon, France
