Maison neuve à
Bréval
(78980) Référence :
MB2392567_3
Prix du projet : Maison avec Terrain
prix 299 000 €
- 6 pièces
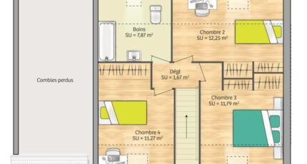
- 4 chambres
- Surface maison 89 m2
VENTE : maison de 6 pièces (89 m²) à Bréval
EMPLACEMENT PRIVILÉGIÉ - MAISON 6 PIÈCES NEUVE
À vendre à 30 km d'Évreux, Maisons France Confort Vernon vous propose cette maison de 6 pièces de 89 m² bénéficiant d'un emplacement d'exception dans Bréval (78980). Son intérieur offre quatre chambres, une cuisine et une salle de bains.
Le terrain de la maison s'étend sur 433 m².
C'est une maison de 2 niveaux. Elle est neuve.
La maison se situe dans un secteur attractif. Il y a le Collège les Nénuphars, l'École Élémentaire les Mille Couleurs et l'École Maternelle la Ribambelle à moins de 10 minutes à pied. Niveau transports en commun, on trouve la gare Bréval dans un rayon de 1 km. Il y a un tennis, des commerces, une boulangerie, un supermarché, un bureau de poste et deux boucheries-charcuteries à proximité du logement.
Elle est à vendre pour la somme de 299 000 €.
Contactez notre agence (BESNARD Mickael : 06-15-50-56-87) pour toute information sur la propriété ou sur les démarches à suivre.
Annonce proposée par un Agent Commercial Partenaire.
Mentions légales
Terrain proposé par un partenaire foncier selon disponibilités et autorisation de publicité au prix de 125 000 €. Hors droit d'enregistrement et frais de notaire. Terrain + Maison proposés au prix de 299 000 € (Hors branchements et raccordements, papiers peints, peintures, revêtement de sol dans les chambres. Tarif modifiable sans préavis). Etiquette énergie : A. Différents modèles disponibles pour ce terrain. Assurances et garanties du constructeur (RC professionnelle, décennale, dommage ouvrage, garantie de remboursement de l'acompte, livraison à prix et délai convenu) : https://www.maisons-france-confort.fr/mentions-legales/. HEXAOM Services est enregistré auprès de l'ORIAS en tant que Courtier en financement, Niveau 1, sous le numéro 14001345.Agence Maisons France Confort de Vernon (27200)
- Téléphone :
- 02 32 51 45 05
- Adressse :
- 38 rue Carnot
27200 Vernon, France
