Maison neuve à
Brie-Comte-Robert
(77170) Référence :
DC2494159_2
Prix du projet : Maison avec Terrain
prix 420 516 €
- 5 pièces
- 3 chambres
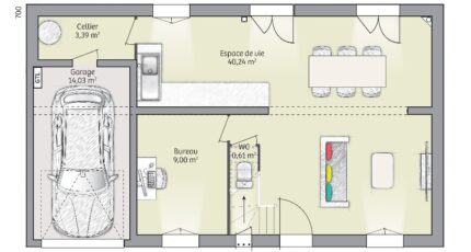
- Surface maison 90 m2
Maison F5 (90 m²) à vendre à Brie-Comte-Robert
MAISON 5 PIÈCES NEUVE - PROCHE DE PARIS
À deux pas de la station Combs-la-Ville-Quincy (Paris à 30 min avec le RER D), nous sommes ravis de vous présenter cette maison de 5 pièces de 90 m² et de 400 m² de terrain à Brie-Comte-Robert (77170).
Cette maison possède 2 niveaux. Son intérieur comporte trois chambres, une cuisine et une salle de bains. Cette maison est neuve.
Il y a cinq établissements scolaires à moins de 10 minutes à pied. Côté transports, on trouve le RER D, E et A ainsi que sept gares à moins de 10 minutes en voiture. Il y a une bibliothèque, des commerces, quatre épiceries, un bureau de poste et une boucherie-charcuterie dans les environs.
Elle est proposée à l'achat pour 420 516 €.
Contactez David CORDIER (tél : 06-10-79-38-15) pour toute information sur ce bien. Maisons France Confort Melun vous accompagne dans tous vos projets immobiliers et à toutes les étapes de l'achat.
Annonce proposée par un Agent Commercial Partenaire.
Mentions légales
Terrain proposé par un partenaire foncier selon disponibilités et autorisation de publicité au prix de 210 000 €. Hors droit d'enregistrement et frais de notaire. Terrain + Maison proposés au prix de 420 516 € (Hors branchements et raccordements, papiers peints, peintures, revêtement de sol dans les chambres. Tarif modifiable sans préavis). Etiquette énergie : A. Différents modèles disponibles pour ce terrain. Assurances et garanties du constructeur (RC professionnelle, décennale, dommage ouvrage, garantie de remboursement de l'acompte, livraison à prix et délai convenu) : https://www.maisons-france-confort.fr/mentions-legales/. HEXAOM Services est enregistré auprès de l'ORIAS en tant que Courtier en financement, Niveau 1, sous le numéro 14001345.Agence Maisons France Confort de Melun (77000)
- Téléphone :
- 01 64 14 43 20
- Adressse :
- 3 route de Nangis
77000 Melun, France