Maison neuve à
Brie-Comte-Robert (77170) Référence : DC2482484_2

Prix du projet : Maison avec Terrain

prix 420 516 €

  • 5 pièces
  • 3 chambres
  • Surface maison 90 m2

VENTE : maison de 5 pièces (90 m²) à Brie-Comte-Robert
MAISON 5 PIÈCES NEUVE - PROCHE DE PARIS
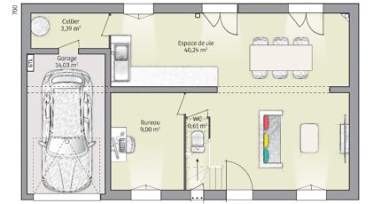
À quelques minutes de la station Combs-la-Ville-Quincy (Paris à 30 min avec le RER D), laissez vous charmer par à vendre à Brie-Comte-Robert (77170), cette maison de 5 pièces de 90 m² et de 400 m² de terrain. Elle dispose de trois chambres, d'une cuisine et d'une salle de bains.
Cette maison comporte 2 niveaux. Elle est neuve.
Il y a cinq établissements scolaires à moins de 10 minutes à pied. Niveau transports, on trouve trois lignes de RER (D, E et A) ainsi que sept gares à moins de 10 minutes en voiture. On trouve une bibliothèque, des commerces, une boucherie-charcuterie, un bureau de poste et quatre épiceries à quelques minutes du logement.
Elle est à vendre pour la somme de 420 516 €.
Prenez contact avec David CORDIER (06-10-79-38-15) pour tout renseignement sur cette maison, sur les modalités de vente ou sur les démarches à suivre. Concrétisez vos projets immobiliers avec Maisons France Confort Melun.

Annonce proposée par un Agent Commercial Partenaire.

Mentions légales

Terrain proposé par un partenaire foncier selon disponibilités et autorisation de publicité au prix de 210 000 €. Hors droit d'enregistrement et frais de notaire. Terrain + Maison proposés au prix de 420 516 € (Hors branchements et raccordements, papiers peints, peintures, revêtement de sol dans les chambres. Tarif modifiable sans préavis). Etiquette énergie : A. Différents modèles disponibles pour ce terrain. Assurances et garanties du constructeur (RC professionnelle, décennale, dommage ouvrage, garantie de remboursement de l'acompte, livraison à prix et délai convenu) : https://www.maisons-france-confort.fr/mentions-legales/. HEXAOM Services est enregistré auprès de l'ORIAS en tant que Courtier en financement, Niveau 1, sous le numéro 14001345.

Contactez l'agence de Melun

01 64 14 43 20

    * Champs obligatoires

    Vos informations sont traitées par HEXAOM et transmises à un conseiller commercial qui vous contactera afin de répondre à votre demande. Les plans et images présentés sur notre site sont la propriété d’HEXAOM et ne peuvent pas être reproduits sans son accord. Pour retrouver notre politique de protection des données personnelles et exercer vos droits conformément à la « loi informatique et liberté » cliquez-ici.