Maison neuve à
Bruges (33520) Référence : AN2471317_2

Prix du projet : Maison avec Terrain

prix 697 000 €

  • 5 pièces
  • 4 chambres
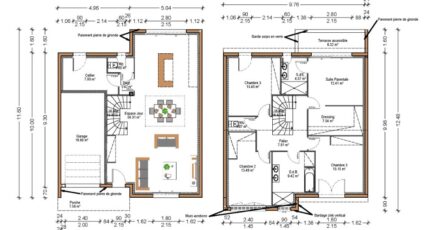
  • Surface maison 150 m2

Exclusivité So'9 Habitat Bordeaux

Faites construire votre future maison Rue André Malraux à Bruges.

Comme cette jolie maison familiale de 150m2 habitables sur un terrain viabilisé et clôturé de 409m2 situé à seulement 800m du Tram E arrêt Ausone.

En résumé :
- Surface de 409m2
- Tram E "Ausone" à 800m
- Entièrement clôturé et viabilisé
- 14m de façade
- Prêt à construire
- 30% d'emprise au sol

Choisissez So'9 Habitat pour vous accompagner dans votre projet, trouver le terrain adapté et concevoir une maison sur mesure.
Nous sélectionnons et validons les meilleures opportunités foncières sur le secteur.

Contactez-nous pour une étude personnalisée de votre projet et la présentation des terrains disponibles.

À bientôt,
L'équipe So'9 Habitat

So'9 Habitat Bordeaux
201 rue Georges Bonnac
33000 Bordeaux

Annonce proposée par un Agent Commercial Partenaire.

Mentions légales

Terrain proposé par un partenaire foncier selon disponibilité dans le cadre d’un projet de construction avec So'9 Habitat. Les descriptions, photographies, surfaces et prix illustrant l'annonce sont fournies à titre indicatif et ne sont pas contractuels. Non soumis au DPE. Différents modèles disponibles.

Contactez l'agence de Bordeaux

05 54 54 92 32

    * Champs obligatoires

    Vos informations sont traitées par HEXAOM et transmises à un conseiller commercial qui vous contactera afin de répondre à votre demande. Les plans et images présentés sur notre site sont la propriété d’HEXAOM et ne peuvent pas être reproduits sans son accord. Pour retrouver notre politique de protection des données personnelles et exercer vos droits conformément à la « loi informatique et liberté » cliquez-ici.