Maison neuve à 
  Camors
 (56330)  Référence :
 GC2279857_4 
Prix du projet : Maison avec Terrain
prix 263 900 €
- 4 pièces
- 3 chambres
- Surface maison 90 m2
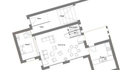
Maison F4 (90 m²) en vente à Camors
PROCHE DE LORIENT - MAISON 4 PIÈCES NEUVE
À 30 km de l'océan Atlantique et à quelques kilomètres de Lorient, découvrez en vente à Camors (56330), cette maison de 4 pièces de 90 m² et de 442 m² de terrain.
Cette maison compte 2 niveaux. Son intérieur offre trois chambres, une cuisine et deux salles de bains. La maison est neuve.
Il y a l'École Primaire Publique les Lutins et l'École Primaire Privée Saint Joseph à moins de 10 minutes à pied et une crèche. On trouve un accès à la nationale N24 à 6 km. On trouve une boulangerie, un commerce, un bureau de poste et une boucherie-charcuterie dans les environs.
Elle est à vendre pour la somme de 263 900 €.
Contactez Germain CHARUEL (02-97-68-32-50) pour tout renseignement sur cette maison, sur les modalités de vente ou sur les démarches à suivre. Maisons de l'Avenir Vannes vous accompagne dans tous vos projets immobiliers et dans toutes vos démarches.
Mentions légales
Maisons de l’Avenir, constructeur de maisons individuelles, propose en collaboration avec ses partenaires fonciers, une sélection de terrains constructibles, selon disponibilité, pour la construction de maisons neuves définies par le constructeur, avec un contrat de construction de maison individuelle, dans le cadre de la loi du 19/12/1990. Prix net, hors frais notariés, d'enregistrement et de publicité foncière
Terrain proposé au prix de : 56 900 €
Maison proposée au prix de : 207 000 €
Etiquette énergie : A. Assurances et garanties du constructeur (RC professionnelle, décennale, dommage ouvrage, Garantie de livraison à prix et délai convenu). https://www.maisonsdelavenir.com/mentions-legales/
Agence Maisons de l'Avenir de Vannes (56000)
- Téléphone :
- 02 97 68 32 50
- Adressse :
-  36, rue Oberlé
 56000 Vannes, France
 
  
  
  
  
  
  
 