Maison neuve à
Cany-Barville (76450) Référence : LC2430242_1

Prix du projet : Maison avec Terrain

prix 173 599 €

  • 4 pièces
  • 3 chambres
  • Surface maison 76 m2

MAISON NEUVE AVEC 4 PIÈCES, IDÉALEMENT SITUÉE À CANY-BARVILLE

PRÉSENTATION DU BIEN

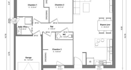
Située à Cany-Barville, cette maison neuve à construire dispose d'une surface habitable de 76 m² sur un terrain de 651 m². Elle se trouve dans une zone pavillonnaire, proche de la Manche à moins de 9 kilomètres.

Cette maison comprend trois chambres, une cuisine, ainsi qu'une salle de bains équipée d'une baignoire.

La maison est de plain-pied, ce qui facilite l'accès à toutes les pièces.

Le terrain de 651 m² offre un espace extérieur appréciable pour vos projets et votre quotidien.

ENVIRONNEMENT

La commune de Cany-Barville propose un cadre de vie calme, près de la mer, la Manche se trouvant à environ 8,7 kilomètres. Ce secteur offre un accès à l'autoroute A29 à 18 kilomètres, facilitant vos déplacements.

Plusieurs établissements scolaires sont accessibles à pied : une école maternelle et deux écoles élémentaires ainsi qu'un collège sont situés entre 10 et 20 minutes à pied. Vous trouverez également des commerces autour du bien.

NOUS CONTACTER

Cette maison est proposée à la vente pour un prix de 173 599 euros.

Pour plus d'informations et pour réaliser votre projet de construction, contactez Lindsay COLLAY de l'agence immobilière Maisons France Confort Sainte-Marie-des-Champs au O6-67-66-O8-77. N'attendez plus pour construire votre maison dans ce secteur résidentiel.

Mentions légales

Terrain proposé par un partenaire foncier selon disponibilités et autorisation de publicité au prix de 47 000 €. Hors droit d'enregistrement et frais de notaire. Terrain + Maison proposés au prix de 173 599 € (Hors branchements et raccordements, papiers peints, peintures, revêtement de sol dans les chambres. Tarif modifiable sans préavis). Etiquette énergie : A. Différents modèles disponibles pour ce terrain. Assurances et garanties du constructeur (RC professionnelle, décennale, dommage ouvrage, garantie de remboursement de l'acompte, livraison à prix et délai convenu) : https://www.maisons-france-confort.fr/mentions-legales/. HEXAOM Services est enregistré auprès de l'ORIAS en tant que Courtier en financement, Niveau 1, sous le numéro 14001345.

Contactez l'agence de Sainte-Marie-des-Champs

02 32 98 94 90

    * Champs obligatoires

    Vos informations sont traitées par HEXAOM et transmises à un conseiller commercial qui vous contactera afin de répondre à votre demande. Les plans et images présentés sur notre site sont la propriété d’HEXAOM et ne peuvent pas être reproduits sans son accord. Pour retrouver notre politique de protection des données personnelles et exercer vos droits conformément à la « loi informatique et liberté » cliquez-ici.