Maison neuve à
Cany-Barville
(76450) Référence :
LC2430242_4
Prix du projet : Maison avec Terrain
prix 190 311 €
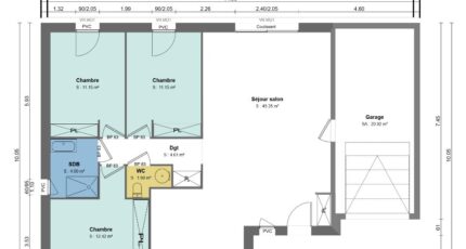
- 4 pièces
- 3 chambres
- Surface maison 90 m2
Votre projet de construction est prêt!!
Il se situe à Cany-Barville (76450) dans un lotissement, sur un terrain déjà viabilisé, assainissement collectif!!
Cette maison comprend 3 chambres, un espace de vie cuisine/séjour ouvert de 45 m², un grand garage et une salle d'eau commune, les menuiseries sont en pvc, et le système de chauffage est une Pac Air Air..
Je vous indiquerai les frais annexes à ajouter à ce projet!!
Maisons France Confort, fondateur du Groupe HEXAOM, vous promet un projet durable.
Laissez-moi vous accompagner de A à Z, libérez vous des recherches épuisantes et offrez vous un vrai investissement avec un DPE en classe A!!!
Je m'appelle Lindsay COLLAY, et vous pouvez me contacter O6 67 66 O8 77
Mentions légales
Terrain proposé par un partenaire foncier selon disponibilités et autorisation de publicité au prix de 47 000 €. Hors droit d'enregistrement et frais de notaire. Terrain + Maison proposés au prix de 190 311 € (Hors branchements et raccordements, papiers peints, peintures, revêtement de sol dans les chambres. Tarif modifiable sans préavis). Etiquette énergie : A. Différents modèles disponibles pour ce terrain. Assurances et garanties du constructeur (RC professionnelle, décennale, dommage ouvrage, garantie de remboursement de l'acompte, livraison à prix et délai convenu) : https://www.maisons-france-confort.fr/mentions-legales/. HEXAOM Services est enregistré auprès de l'ORIAS en tant que Courtier en financement, Niveau 1, sous le numéro 14001345.Agence Maisons France Confort de Sainte-Marie-des-Champs (76190)
- Téléphone :
- 02 32 98 94 90
- Adressse :
- 74 avenue René Coty
76190 Sainte-Marie-des-Champs, France
