Maison neuve à
Carcassonne
(11000) Référence :
SE2489461_2
Prix du projet : Maison avec Terrain
prix 437 107 €
- 6 pièces
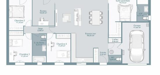
- 4 chambres
- Surface maison 115 m2
Maison de 6 pièces (115 m²) à vendre à Carcassonne
EMPLACEMENT PRIVILÉGIÉ - MAISON 6 PIÈCES NEUVE
En vente bénéficiant d'un emplacement d'exception dans Carcassonne (11000), nous vous proposons cette maison de 6 pièces de plain-pied de 115 m².
Son intérieur comporte quatre chambres, une cuisine et deux salles de bains. Cette maison est neuve.
Le terrain du bien s'étend sur 724 m².
La propriété se trouve dans un quartier recherché. Des écoles de tous types sont implantées à moins de 10 minutes à pied, tout comme une crèche. Niveau transports, il y a la gare Carcassonne dans un rayon de 1 km. Il y a un accès à l'autoroute A61 à 4 km. On trouve deux tennis, un bassin de natation, des commerces, deux bureaux de poste, deux supérettes, deux poissonneries et des épiceries dans les environs.
Elle est à vendre pour la somme de 437 107 €.
Prenez contact avec notre agence (EMBID Stéphane : 06-65-50-56-62) pour toute information sur la maison.
Mentions légales
Terrain proposé par un partenaire foncier selon disponibilités et autorisation de publicité au prix de 94 900 €. Hors droit d'enregistrement et frais de notaire. Terrain + Maison proposés au prix de 437 107 € (Hors branchements et raccordements, papiers peints, peintures, revêtement de sol dans les chambres. Tarif modifiable sans préavis). Etiquette énergie : A. Différents modèles disponibles pour ce terrain. Assurances et garanties du constructeur (RC professionnelle, décennale, dommage ouvrage, garantie de remboursement de l'acompte, livraison à prix et délai convenu) : https://www.maisons-france-confort.fr/mentions-legales/. HEXAOM Services est enregistré auprès de l'ORIAS en tant que Courtier en financement, Niveau 1, sous le numéro 14001345.Agence Maisons France Confort de Carcassonne (11000)
- Téléphone :
- 04 68 47 39 25
- Adressse :
- 73 bis avenue du Général Leclerc
11000 Carcassonne, France
