Maison neuve à
Carcassonne
(11000) Référence :
SE2489493_5
Prix du projet : Maison avec Terrain
prix 254 499 €
- 6 pièces
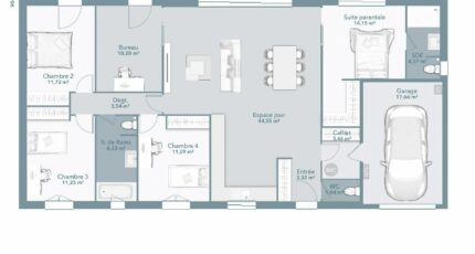
- 5 chambres
- Surface maison 125 m2
VENTE d'une maison de 6 pièces (125 m²) à Carcassonne
QUARTIER RECHERCHÉ - MAISON 6 PIÈCES NEUVE
En vente dans un secteur prisé de Carcassonne (11000), ayez le coup de coeur pour cette maison de 6 pièces de plain-pied de 125 m².
Elle inclut cinq chambres, une cuisine et deux salles de bains. La maison est neuve.
Le terrain du bien est de 400 m².
Cette maison se situe dans un quartier convoité. Des établissements scolaires de tous niveaux (de la maternelle au lycée) se trouvent à moins de 10 minutes à pied, tout comme une crèche. Côté transports, il y a la gare Carcassonne dans un rayon de 1 km. On trouve un accès à l'autoroute A61 à 4 km. On trouve deux tennis, un bassin de natation, des commerces, des épiceries, deux supérettes, deux poissonneries et des boucheries-charcuteries à proximité.
Elle est proposée à l'achat pour 254 499 €.
Contactez notre agence (Stéphane EMBID : 06-65-50-56-62) pour plus de renseignements sur la maison et sur les démarches à suivre. Maisons France Confort Carcassonne est là pour vous accompagner dans tous vos projets immobiliers.
Mentions légales
Terrain proposé par un partenaire foncier selon disponibilités et autorisation de publicité au prix de 64 900 €. Hors droit d'enregistrement et frais de notaire. Terrain + Maison proposés au prix de 254 499 € (Hors branchements et raccordements, papiers peints, peintures, revêtement de sol dans les chambres. Tarif modifiable sans préavis). Etiquette énergie : A. Différents modèles disponibles pour ce terrain. Assurances et garanties du constructeur (RC professionnelle, décennale, dommage ouvrage, garantie de remboursement de l'acompte, livraison à prix et délai convenu) : https://www.maisons-france-confort.fr/mentions-legales/. HEXAOM Services est enregistré auprès de l'ORIAS en tant que Courtier en financement, Niveau 1, sous le numéro 14001345.Agence Maisons France Confort de Carcassonne (11000)
- Téléphone :
- 04 68 47 39 25
- Adressse :
- 73 bis avenue du Général Leclerc
11000 Carcassonne, France
