Maison neuve à
Cauvicourt
(14190) Référence :
SC2396211_1
Prix du projet : Maison avec Terrain
prix 254 600 €
- 5 pièces
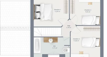
- 3 chambres
- Surface maison 80 m2
Maison T5 (80 m²) à vendre à Cauvicourt
IDÉALEMENT SITUÉE - MAISON 5 PIÈCES NEUVE
À 27 km de la Manche et à deux pas de Caen, nous vous proposons à vendre, idéalement située dans Cauvicourt (14190), cette maison de 5 pièces de 80 m² et de 365 m² de terrain.
Cette maison possède 2 niveaux. Son intérieur se divise en trois chambres, une cuisine et une salle de bains. Cette maison est neuve.
Cette maison se situe dans un secteur recherché. Niveau transports, on trouve la gare Moult-Argences à moins de 10 minutes en voiture. La nationale N158 est accessible à 2 km. Il y a une bibliothèque à proximité.
Son prix de vente est de 254 600 €.
Contactez notre agence (CHATARD Séverine : 06-29-77-10-07) pour toute question sur la maison. Maisons France Confort Caen est là pour vous accompagner à toutes les étapes de votre projet.
Mentions légales
Terrain proposé par un partenaire foncier selon disponibilités et autorisation de publicité au prix de 62 500 €. Hors droit d'enregistrement et frais de notaire. Terrain + Maison proposés au prix de 254 600 € (Hors branchements et raccordements, papiers peints, peintures, revêtement de sol dans les chambres. Tarif modifiable sans préavis). Etiquette énergie : A. Différents modèles disponibles pour ce terrain. Assurances et garanties du constructeur (RC professionnelle, décennale, dommage ouvrage, garantie de remboursement de l'acompte, livraison à prix et délai convenu) : https://www.maisons-france-confort.fr/mentions-legales/. HEXAOM Services est enregistré auprès de l'ORIAS en tant que Courtier en financement, Niveau 1, sous le numéro 14001345.Agence Maisons France Confort de Caen (14000)
- Téléphone :
- 02 31 86 12 21
- Adressse :
- 11 place de la Résistance
14000 Caen, France
