Maison neuve à
Cauvicourt (14190) Référence : KD2490096_1

Prix du projet : Maison avec Terrain

prix 252 000 €

  • 5 pièces
  • 3 chambres
  • Surface maison 90 m2

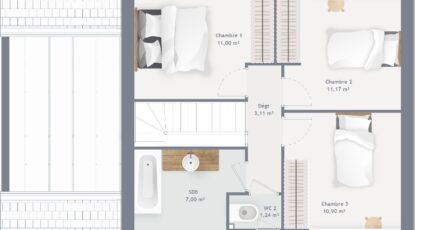
Cauvicourt : maison de 5 pièces (90 m²) en vente
IDÉALEMENT SITUÉE - VUE SANS VIS-À-VIS
En vente à 27 km de la Manche et à 17 km de Caen, notre agence Maisons France Confort Caen est ravie de vous proposer, idéalement située dans Cauvicourt (14190), cette maison de 5 pièces de 90 m² et de 317 m² de terrain sans vis-à-vis. Elle inclut trois chambres, une cuisine et une salle de bains.
C'est une maison de 2 niveaux. Elle est neuve.
Cette maison est située dans un secteur convoité. Côté transports en commun, on trouve la gare Moult-Argences à moins de 10 minutes en voiture. La nationale N158 est accessible à 2 km. Il y a une bibliothèque à proximité.
Elle est à vendre pour la somme de 252 000 €.
N'hésitez pas à prendre contact avec Kevin DUCHESNE (06-88-19-70-17) pour toute question sur le bien. Maisons France Confort Caen est là pour vous accompagner à toutes les étapes de votre projet.

Mentions légales

Terrain proposé par un partenaire foncier selon disponibilités et autorisation de publicité au prix de 56 900 €. Hors droit d'enregistrement et frais de notaire. Terrain + Maison proposés au prix de 252 000 € (Hors branchements et raccordements, papiers peints, peintures, revêtement de sol dans les chambres. Tarif modifiable sans préavis). Etiquette énergie : A. Différents modèles disponibles pour ce terrain. Assurances et garanties du constructeur (RC professionnelle, décennale, dommage ouvrage, garantie de remboursement de l'acompte, livraison à prix et délai convenu) : https://www.maisons-france-confort.fr/mentions-legales/. HEXAOM Services est enregistré auprès de l'ORIAS en tant que Courtier en financement, Niveau 1, sous le numéro 14001345.

Contactez l'agence de Caen

02 31 86 12 21

    * Champs obligatoires

    Vos informations sont traitées par HEXAOM et transmises à un conseiller commercial qui vous contactera afin de répondre à votre demande. Les plans et images présentés sur notre site sont la propriété d’HEXAOM et ne peuvent pas être reproduits sans son accord. Pour retrouver notre politique de protection des données personnelles et exercer vos droits conformément à la « loi informatique et liberté » cliquez-ici.