Maison neuve à
Chalifert (77144) Référence : CY2404176_1

Prix du projet : Maison avec Terrain

prix 434 000 €

  • 5 pièces
  • 3 chambres
  • Surface maison 80 m2

Chalifert : maison T5 (80 m²) en vente
IDÉALEMENT SITUÉE - MAISON 5 PIÈCES NEUVE
À côté de la gare d'Esbly (Paris à 30 min par le Transilien P), à vendre idéalement située dans Chalifert (77144), Maisons France Confort Mareuil-lès-Meaux vous propose cette maison de 5 pièces de 80 m².
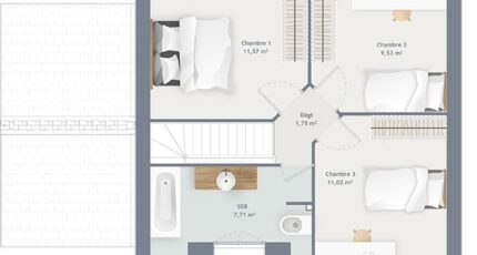
Cette maison possède 2 niveaux. Elle comporte trois chambres, une cuisine et une salle de bains. La maison est neuve.
Le terrain de la propriété s'étend sur 492 m².
Cette maison est située dans un quartier convoité. L'École Primaire Clos de la Fontaine se trouve à moins de 10 minutes à pied. Niveau transports, il y a la ligne de RER A (Chessy-Marne-La-Vallée) ainsi que sept gares à moins de 10 minutes en voiture. On trouve plusieurs commerces dans les environs.
Son prix de vente est de 329 360 €.
Prenez contact avec Cedric YAHIAOUI (06-66-57-00-63) pour toute question sur la propriété. Maisons France Confort Mareuil-lès-Meaux vous accompagne dans toutes vos démarches et dans tous vos projets immobiliers.

Annonce proposée par un Agent Commercial Partenaire.

Mentions légales

Terrain proposé par un partenaire foncier selon disponibilités et autorisation de publicité au prix de 290 000 €. Hors droit d'enregistrement et frais de notaire. Terrain + Maison proposés au prix de 434 000 € (Hors branchements et raccordements, papiers peints, peintures, revêtement de sol dans les chambres. Tarif modifiable sans préavis). Etiquette énergie : A. Différents modèles disponibles pour ce terrain. Assurances et garanties du constructeur (RC professionnelle, décennale, dommage ouvrage, garantie de remboursement de l'acompte, livraison à prix et délai convenu) : https://www.maisons-france-confort.fr/mentions-legales/. HEXAOM Services est enregistré auprès de l'ORIAS en tant que Courtier en financement, Niveau 1, sous le numéro 14001345.

Contactez l'agence de Mareuil-lès-Meaux

01 60 09 28 30

    * Champs obligatoires

    Vos informations sont traitées par HEXAOM et transmises à un conseiller commercial qui vous contactera afin de répondre à votre demande. Les plans et images présentés sur notre site sont la propriété d’HEXAOM et ne peuvent pas être reproduits sans son accord. Pour retrouver notre politique de protection des données personnelles et exercer vos droits conformément à la « loi informatique et liberté » cliquez-ici.