Maison neuve à
Chalifert
(77144) Référence :
CY2404140_2
Prix du projet : Maison avec Terrain
prix 442 000 €
- 5 pièces
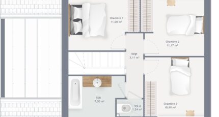
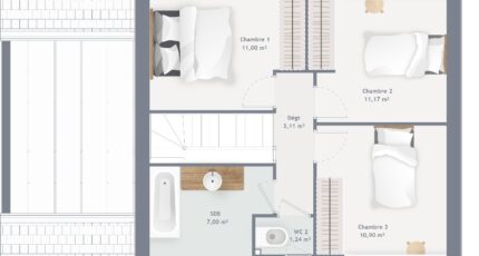
- 3 chambres
- Surface maison 90 m2
Chalifert : maison T5 (90 m²) à vendre
IDÉALEMENT SITUÉE - MAISON 5 PIÈCES NEUVE
À quelques minutes de la gare d'Esbly (Paris à 30 min avec le Transilien P), ayez le coup de coeur pour cette maison de 5 pièces de 90 m² idéalement située dans Chalifert (77144). Son intérieur compte trois chambres, une cuisine et une salle de bains.
Le terrain du bien est de 401 m².
Il s'agit d'une maison de 2 niveaux. Elle est neuve.
La maison est située dans un secteur prisé. L'École Primaire Clos de la Fontaine se trouve à moins de 10 minutes à pied. Niveau transports en commun, il y a la ligne de RER A (Chessy-Marne-La-Vallée) ainsi que sept gares à moins de 10 minutes en voiture. Il y a plusieurs commerces à quelques minutes à peine.
Son prix de vente est de 316 090 €.
N'hésitez pas à prendre contact avec notre agence (Cedric YAHIAOUI : 06-66-57-00-63) pour toute information sur la propriété, sur les démarches à suivre ou sur les modalités de vente. Maisons France Confort Mareuil-lès-Meaux est là pour vous accompagner dans tous vos projets immobiliers.
Annonce proposée par un Agent Commercial Partenaire.
Mentions légales
Terrain proposé par un partenaire foncier selon disponibilités et autorisation de publicité au prix de 280 000 €. Hors droit d'enregistrement et frais de notaire. Terrain + Maison proposés au prix de 442 000 € (Hors branchements et raccordements, papiers peints, peintures, revêtement de sol dans les chambres. Tarif modifiable sans préavis). Etiquette énergie : A. Différents modèles disponibles pour ce terrain. Assurances et garanties du constructeur (RC professionnelle, décennale, dommage ouvrage, garantie de remboursement de l'acompte, livraison à prix et délai convenu) : https://www.maisons-france-confort.fr/mentions-legales/. HEXAOM Services est enregistré auprès de l'ORIAS en tant que Courtier en financement, Niveau 1, sous le numéro 14001345.Agence Maisons France Confort de Mareuil-lès-Meaux (77100)
- Téléphone :
- 01 60 09 28 30
- Adressse :
- Domexpo Est Village La Hayette
77100 Mareuil-lès-Meaux, France