Maison neuve à
Chamant (60300) Référence : XDSS2481693_4

Prix du projet : Maison avec Terrain

prix 390 000 €

  • 6 pièces
  • 4 chambres
  • Surface maison 105 m2

Venez concevoir votre maison à CHAMANT (60) d'une superficie de 402 m²,plat, avec belle façade constructible de 15,60 ml, idéalement situé à Proximité de SENLIS.

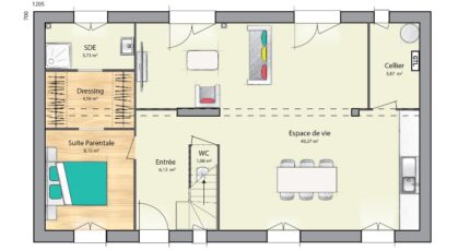
Exemple de projet maison de 105 m2 loi Carrez

Tous nos projets sont entièrement réalisés sur-mesure, de nombreuses prestations incluses: baies coulissantes en aluminium, volets roulants intégrés à la maçonnerie (non-apparents) motorisés.

Entrée, cuisine, pièce de vie, cellier et pièces d'eau carrelés, maison prête à décorer, clef en main.

Pompe à chaleur ou pompe à chaleur hybride (gaz) dernière génération (classe énergétique A+), plancher chauffant RDC (et ETAGE), sèche-serviettes, plusieurs choix de menuiseries intérieures, construction en brique. RE 2020.

Projet terrain + maison + frais annexes.

Pour tout renseignement contacter XAVIER de l'agence Maisons France Confort au 06 16 27 53 27.

Mentions légales

Terrain proposé par un partenaire foncier selon disponibilités et autorisation de publicité au prix de 165 000 €. Hors droit d'enregistrement et frais de notaire. Terrain + Maison proposés au prix de 390 000 € (Hors branchements et raccordements, papiers peints, peintures, revêtement de sol dans les chambres. Tarif modifiable sans préavis). Etiquette énergie : A. Différents modèles disponibles pour ce terrain. Assurances et garanties du constructeur (RC professionnelle, décennale, dommage ouvrage, garantie de remboursement de l'acompte, livraison à prix et délai convenu) : https://www.maisons-france-confort.fr/mentions-legales/. HEXAOM Services est enregistré auprès de l'ORIAS en tant que Courtier en financement, Niveau 1, sous le numéro 14001345.

Contactez l'agence de Compiègne

03 44 86 81 34

    * Champs obligatoires

    Vos informations sont traitées par HEXAOM et transmises à un conseiller commercial qui vous contactera afin de répondre à votre demande. Les plans et images présentés sur notre site sont la propriété d’HEXAOM et ne peuvent pas être reproduits sans son accord. Pour retrouver notre politique de protection des données personnelles et exercer vos droits conformément à la « loi informatique et liberté » cliquez-ici.