Maison neuve à
Château-Thierry (02400) Référence : TM2482149_1

Prix du projet : Maison avec Terrain

prix 240 000 €

  • 5 pièces
  • 3 chambres
  • Surface maison 90 m2

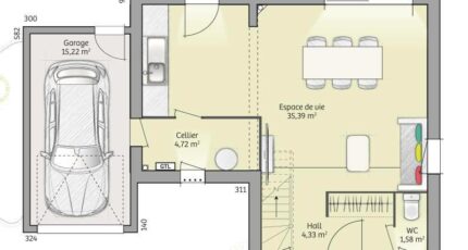
Maison de 5 pièces (90 m²) à vendre à Château-Thierry
MAISON 5 PIÈCES NEUVE
À vendre : à deux pas de la gare (Paris à 1 h avec le Transilien P), laissez vous charmer par cette maison de 5 pièces de 90 m² et de 489 m² de terrain à Château-Thierry (02400). Elle offre trois chambres, une cuisine et une salle de bains.
Cette maison comporte 2 niveaux. Elle est neuve.
Des écoles du primaire et du secondaire sont implantées à moins de 10 minutes à pied. Niveau transports, il y a la gare Château-Thierry dans les environs. L'autoroute A4 est accessible à 4 km. On trouve des commerces, un bureau de poste, des épiceries, des boucheries-charcuteries et deux supérettes à quelques minutes.
Son prix de vente est de 240 000 €.
N'hésitez pas à prendre contact avec notre agence (Teddy MELES : 06-17-56-83-36) pour tout renseignement sur cette maison.

Annonce proposée par un Agent Commercial Partenaire.

Mentions légales

Terrain proposé par un partenaire foncier selon disponibilités et autorisation de publicité au prix de 68 000 €. Hors droit d'enregistrement et frais de notaire. Terrain + Maison proposés au prix de 240 000 € (Hors branchements et raccordements, papiers peints, peintures, revêtement de sol dans les chambres. Tarif modifiable sans préavis). Etiquette énergie : A. Différents modèles disponibles pour ce terrain. Assurances et garanties du constructeur (RC professionnelle, décennale, dommage ouvrage, garantie de remboursement de l'acompte, livraison à prix et délai convenu) : https://www.maisons-france-confort.fr/mentions-legales/. HEXAOM Services est enregistré auprès de l'ORIAS en tant que Courtier en financement, Niveau 1, sous le numéro 14001345.

Contactez l'agence de Magny-le-Hongre

01 84 80 92 96

    * Champs obligatoires

    Vos informations sont traitées par HEXAOM et transmises à un conseiller commercial qui vous contactera afin de répondre à votre demande. Les plans et images présentés sur notre site sont la propriété d’HEXAOM et ne peuvent pas être reproduits sans son accord. Pour retrouver notre politique de protection des données personnelles et exercer vos droits conformément à la « loi informatique et liberté » cliquez-ici.