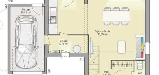
215 Nos Maisons neuves à vendre à Château-Thierry (02400)

Maison neuve à vendre à Château-Thierry. Trouvez nos maisons neuves à construire sur un terrain à Château-Thierry (2 - Aisne). Et élargissez un peu votre recherche géographique pour découvrir les autres projets de terrain + maison neuve à proximité de Château-Thierry si besoin, ou créez une alerte email pour recevoir nos nouvelles annonces de projets de construction.

Trouver un
Terrain + maison

215 annonces identifiées

Type de bien

Type de bien

Emplacement

Où construire ma maison

Ou, choisissez une région via la carte :

Ou bien, rechercher dans Toute la France

Caractéristiques

Caractéristiques du bien

Nombre de chambres

Plusieurs choix possibles

Nombre de pièces

Plusieurs choix possibles

Surface

Surface habitable

m2
m2
Prix

Prix