Maison neuve à
Château-Thierry
(02400) Référence :
TM2482149_2
Prix du projet : Maison avec Terrain
prix 240 000 €
- 5 pièces
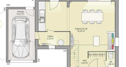
- 3 chambres
- Surface maison 90 m2
VENTE : maison T5 (90 m²) à Château-Thierry
MAISON 5 PIÈCES NEUVE
À deux pas du Transilien P (1 h de Paris), à vendre à Château-Thierry (02400), nous sommes ravis de vous présenter cette maison de 5 pièces de 90 m². Elle comporte trois chambres, une cuisine et une salle de bains.
Le terrain de la propriété est de 489 m².
C'est une maison de 2 niveaux. Elle est neuve.
Des écoles de tous niveaux (de la maternelle au lycée) sont implantées à moins de 10 minutes à pied. Niveau transports, on trouve la gare Château-Thierry à quelques pas du bien. L'autoroute A4 est accessible à 4 km. Il y a des commerces, des épiceries, des boucheries-charcuteries, un bureau de poste et deux supérettes dans les environs.
Son prix de vente est de 240 000 €.
N'hésitez pas à prendre contact avec Teddy MELES (06-17-56-83-36) pour plus de renseignements sur cette maison, sur les modalités de vente ou sur les démarches à suivre.
Annonce proposée par un Agent Commercial Partenaire.
Mentions légales
Terrain proposé par un partenaire foncier selon disponibilités et autorisation de publicité au prix de 68 000 €. Hors droit d'enregistrement et frais de notaire. Terrain + Maison proposés au prix de 240 000 € (Hors branchements et raccordements, papiers peints, peintures, revêtement de sol dans les chambres. Tarif modifiable sans préavis). Etiquette énergie : A. Différents modèles disponibles pour ce terrain. Assurances et garanties du constructeur (RC professionnelle, décennale, dommage ouvrage, garantie de remboursement de l'acompte, livraison à prix et délai convenu) : https://www.maisons-france-confort.fr/mentions-legales/. HEXAOM Services est enregistré auprès de l'ORIAS en tant que Courtier en financement, Niveau 1, sous le numéro 14001345.Agence Maisons France Confort de Magny-le-Hongre (77700)
- Téléphone :
- 01 84 80 92 96
- Adressse :
- 11 rue de Courtalin
77700 Magny-le-Hongre, France
