Maison neuve à
Château-Thierry (02400) Référence : TM2482149_4

Prix du projet : Maison avec Terrain

prix 240 000 €

  • 5 pièces
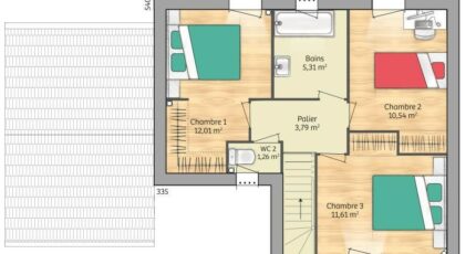
  • 3 chambres
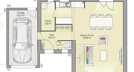
  • Surface maison 90 m2

Château-Thierry : maison T5 (90 m²) à vendre
MAISON 5 PIÈCES NEUVE
À 980 m du Transilien P (1 h de Paris), Maisons France Confort Magny-le-Hongre vous propose cette maison de 5 pièces de 90 m² et de 489 m² de terrain en vente à Château-Thierry (02400). Son intérieur comporte trois chambres, une cuisine et une salle de bains.
Il s'agit d'une maison de 2 niveaux. Elle est neuve.
Il y a des établissements scolaires de tous niveaux à moins de 10 minutes à pied. Niveau transports en commun, on trouve la gare Château-Thierry juste à côté. L'autoroute A4 est accessible à 4 km. Il y a des commerces, des épiceries, un bureau de poste, des boucheries-charcuteries et deux supérettes dans les environs.
Son prix de vente est de 240 000 €.
Contactez notre agence (MELES Teddy : 06-17-56-83-36) pour toute question sur cette maison ou sur les démarches à suivre. Donnez vie à vos projets immobiliers avec Maisons France Confort Magny-le-Hongre.

Annonce proposée par un Agent Commercial Partenaire.

Mentions légales

Terrain proposé par un partenaire foncier selon disponibilités et autorisation de publicité au prix de 68 000 €. Hors droit d'enregistrement et frais de notaire. Terrain + Maison proposés au prix de 240 000 € (Hors branchements et raccordements, papiers peints, peintures, revêtement de sol dans les chambres. Tarif modifiable sans préavis). Etiquette énergie : A. Différents modèles disponibles pour ce terrain. Assurances et garanties du constructeur (RC professionnelle, décennale, dommage ouvrage, garantie de remboursement de l'acompte, livraison à prix et délai convenu) : https://www.maisons-france-confort.fr/mentions-legales/. HEXAOM Services est enregistré auprès de l'ORIAS en tant que Courtier en financement, Niveau 1, sous le numéro 14001345.

Contactez l'agence de Magny-le-Hongre

01 84 80 92 96

    * Champs obligatoires

    Vos informations sont traitées par HEXAOM et transmises à un conseiller commercial qui vous contactera afin de répondre à votre demande. Les plans et images présentés sur notre site sont la propriété d’HEXAOM et ne peuvent pas être reproduits sans son accord. Pour retrouver notre politique de protection des données personnelles et exercer vos droits conformément à la « loi informatique et liberté » cliquez-ici.