Maison neuve à
Château-Thierry
(02400) Référence :
TM2482230_31
Prix du projet : Maison avec Terrain
prix 300 000 €
- 4 pièces
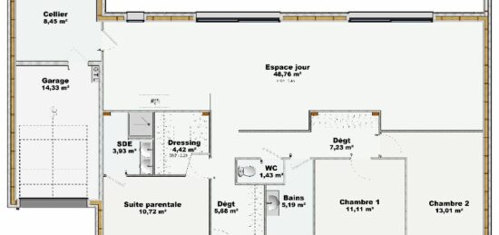
- 2 chambres
- Surface maison 70 m2
VENTE : maison F4 (70 m²) à Château-Thierry
MAISON 4 PIÈCES NEUVE
À quelques minutes du Transilien P (1 h de Paris), nous sommes heureux de vous présenter à vendre à Château-Thierry (02400), cette maison de 4 pièces de plain-pied de 70 m² et de 200 m² de terrain.
Elle compte deux chambres, une cuisine et une salle de bains. La maison est neuve.
On trouve des établissements scolaires du primaire et du secondaire à moins de 10 minutes à pied. Côté transports, il y a la gare Château-Thierry dans les environs. L'autoroute A4 est accessible à 4 km. On trouve des commerces, des boucheries-charcuteries, deux supérettes, un bureau de poste et des épiceries à quelques minutes.
Elle est à vendre pour la somme de 300 000 €.
Contactez notre agence (Teddy MELES : 06-17-56-83-36) pour plus d'informations sur cette maison, sur les modalités de vente ou sur les démarches à suivre. Maisons France Confort Magny-le-Hongre vous accompagne dans tous vos projets immobiliers et à toutes les étapes de votre projet.
Annonce proposée par un Agent Commercial Partenaire.
Mentions légales
Terrain proposé par un partenaire foncier selon disponibilités et autorisation de publicité au prix de 68 000 €. Hors droit d'enregistrement et frais de notaire. Terrain + Maison proposés au prix de 300 000 € (Hors branchements et raccordements, papiers peints, peintures, revêtement de sol dans les chambres. Tarif modifiable sans préavis). Etiquette énergie : A. Différents modèles disponibles pour ce terrain. Assurances et garanties du constructeur (RC professionnelle, décennale, dommage ouvrage, garantie de remboursement de l'acompte, livraison à prix et délai convenu) : https://www.maisons-france-confort.fr/mentions-legales/. HEXAOM Services est enregistré auprès de l'ORIAS en tant que Courtier en financement, Niveau 1, sous le numéro 14001345.Agence Maisons France Confort de Magny-le-Hongre (77700)
- Téléphone :
- 01 84 80 92 96
- Adressse :
- 11 rue de Courtalin
77700 Magny-le-Hongre, France
