Maison neuve à
Châteauroux
(36000) Référence :
TM2392082_1
Prix du projet : Maison avec Terrain
prix 172 900 €
- 4 pièces
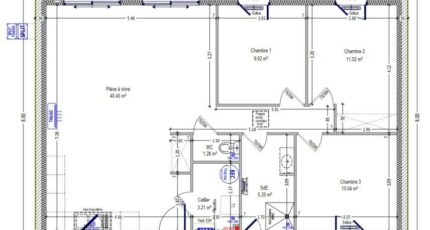
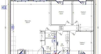
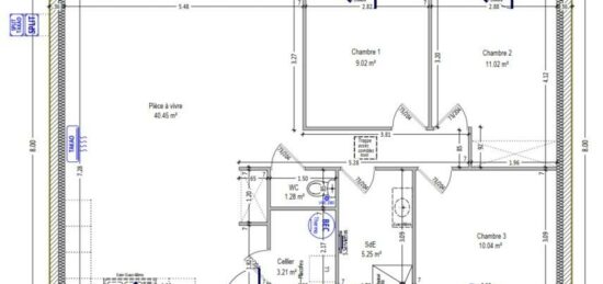
- 3 chambres
- Surface maison 85 m2
Châteauroux : maison de 4 pièces (85 m²) à vendre
IDÉALEMENT SITUÉE - MAISON 4 PIÈCES NEUVE
En vente : ayez le coup de coeur pour, idéalement située dans Châteauroux (36000), cette maison de 4 pièces de plain-pied de 85 m². Son intérieur dispose de trois chambres, d'une cuisine et d'une salle de bains.
Le terrain de la propriété s'étend sur 620 m².
Cette maison est neuve.
La maison se situe dans un secteur convoité. Des écoles du primaire et du secondaire sont implantées à moins de 10 minutes à pied, tout comme une structure d'accueil pour les tout-petits. Niveau transports, on trouve la gare Châteauroux dans un rayon de 1 km. L'autoroute A20 et la nationale N151 sont accessibles à moins de 5 km. Il y a une bibliothèque, des boulangeries, des commerces, deux supermarchés, trois boucheries-charcuteries et des épiceries à quelques minutes.
Elle est proposée à l'achat pour 172 900 €.
Contactez notre agence (MANIERE Thomas : 06-15-51-71-54) pour plus d'informations sur la maison. Maisons Bruno Petit MJB Châteauroux est là pour vous accompagner dans toutes vos démarches.
Mentions légales
Terrain proposé par un partenaire foncier selon disponibilités et autorisation de publicité au prix de 42 000 €. Hors droit d'enregistrement et frais de notaire. Terrain + Maison proposés au prix de 172 900 € (Hors branchements et raccordements, papiers peints, peintures, revêtement de sol dans les chambres. Tarif modifiable sans préavis). Etiquette énergie : A. Différents modèles disponibles pour ce terrain. Assurances et garanties du constructeur (RC professionnelle, décennale, dommage ouvrage, garantie de remboursement de l'acompte, livraison à prix et délai convenu) : https://www.maisons-brunopetit.fr/mentions-legales/.Agence Bruno Petit MJB de Châteauroux (36000)
- Téléphone :
- 02 54 22 66 24
- Adressse :
- 360 avenue de la Châtre
36000 Châteauroux, France