Maison neuve à
Chauconin-Neufmontiers (77124) Référence : CY2406619_1

Prix du projet : Maison avec Terrain

prix 324 000 €

  • 5 pièces
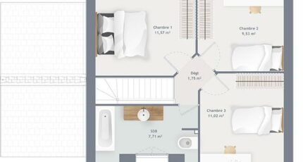
  • 3 chambres
  • Surface maison 80 m2

Maison de 5 pièces (80 m²) en vente à Neufmontiers lès Meaux
IDÉALEMENT SITUÉE - MAISON 5 PIÈCES NEUVE
En vente : à proximité du Transilien P (gare de Meaux, 25 min de Paris), nous sommes heureux de vous proposer cette maison de 5 pièces de 80 m² et de 468 m² de terrain idéalement située dans Neufmontiers lès Meaux (77124). Elle dispose de trois chambres, d'une cuisine et d'une salle de bains.
Il s'agit d'une maison de 2 niveaux. Elle est neuve.
Cette maison se trouve dans un secteur convoité. Il y a l'École Primaire Marianne à moins de 10 minutes à pied. Côté transports, on trouve quatre gares à moins de 10 minutes en voiture. L'autoroute A140 et les nationales N3 et N330 sont accessibles à moins de 4 km. Il y a un tennis, une bibliothèque, deux boulangeries, quatre commerces, un supermarché et une épicerie dans les environs.
Elle est à vendre pour la somme de 324 000 €.
Contactez notre agence (Cedric YAHIAOUI : 06-66-57-00-63) pour tout renseignement sur la maison, sur les démarches à suivre ou sur les modalités de vente. Maisons France Confort Mareuil-lès-Meaux vous accompagne à toutes les étapes de votre projet et dans tous vos projets immobiliers.

Annonce proposée par un Agent Commercial Partenaire.

Mentions légales

Terrain proposé par un partenaire foncier selon disponibilités et autorisation de publicité au prix de 180 000 €. Hors droit d'enregistrement et frais de notaire. Terrain + Maison proposés au prix de 324 000 € (Hors branchements et raccordements, papiers peints, peintures, revêtement de sol dans les chambres. Tarif modifiable sans préavis). Etiquette énergie : A. Différents modèles disponibles pour ce terrain. Assurances et garanties du constructeur (RC professionnelle, décennale, dommage ouvrage, garantie de remboursement de l'acompte, livraison à prix et délai convenu) : https://www.maisons-france-confort.fr/mentions-legales/. HEXAOM Services est enregistré auprès de l'ORIAS en tant que Courtier en financement, Niveau 1, sous le numéro 14001345.

Contactez l'agence de Mareuil-lès-Meaux

01 60 09 28 30

    * Champs obligatoires

    Vos informations sont traitées par HEXAOM et transmises à un conseiller commercial qui vous contactera afin de répondre à votre demande. Les plans et images présentés sur notre site sont la propriété d’HEXAOM et ne peuvent pas être reproduits sans son accord. Pour retrouver notre politique de protection des données personnelles et exercer vos droits conformément à la « loi informatique et liberté » cliquez-ici.