Maison neuve à
Chaumont-en-Vexin
(60240) Référence :
CY2431375-0_1
Prix du projet : Maison avec Terrain
prix 275 000 €
- 5 pièces
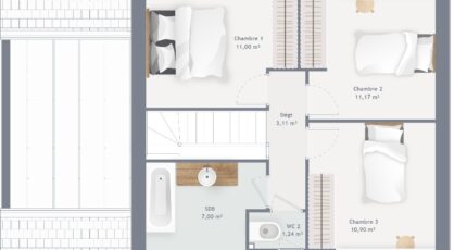
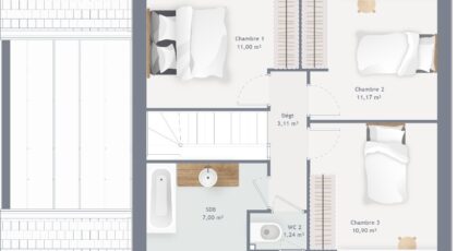
- 3 chambres
- Surface maison 90 m2
VENTE d'une maison de 5 pièces (90 m²) à Chaumont-en-Vexin
MAISON 5 PIÈCES NEUVE - PROCHE DE CERGY
À vendre : au pied du Transilien J (1 h de Paris), nous sommes heureux de vous présenter à Chaumont-en-Vexin (60240), cette maison de 5 pièces de 90 m².
Cette maison comporte 2 niveaux. Elle est composée de trois chambres, d'une cuisine et d'une salle de bains. Cette maison est neuve.
Le terrain du bien est de 745 m².
L'École Maternelle Roger Blondeau, l'École Élémentaire Roger Blondeau et le Collège Saint-Exupéry sont implantés à moins de 10 minutes à pied. Côté transports en commun, on trouve la gare Chaumont-en-Vexin à proximité. On trouve un accès à la nationale N31 à 17 km et Cergy se situe à 29 km. Il y a quatre commerces, une boulangerie, deux supermarchés, un bureau de poste et une épicerie à quelques minutes à peine.
Elle est à vendre pour la somme de 275 000 €.
Contactez notre agence (YAHIAOUI Cedric : 06-66-57-00-63) pour obtenir de plus amples renseignements sur la maison ou sur les modalités de vente. Maisons France Confort Magny-le-Hongre vous accompagne dans toutes vos démarches et dans tous vos projets immobiliers.
Annonce proposée par un Agent Commercial Partenaire.
Mentions légales
Terrain proposé par un partenaire foncier selon disponibilités et autorisation de publicité au prix de 76 900 €. Hors droit d'enregistrement et frais de notaire. Terrain + Maison proposés au prix de 275 000 € (Hors branchements et raccordements, papiers peints, peintures, revêtement de sol dans les chambres. Tarif modifiable sans préavis). Etiquette énergie : A. Différents modèles disponibles pour ce terrain. Assurances et garanties du constructeur (RC professionnelle, décennale, dommage ouvrage, garantie de remboursement de l'acompte, livraison à prix et délai convenu) : https://www.maisons-france-confort.fr/mentions-legales/. HEXAOM Services est enregistré auprès de l'ORIAS en tant que Courtier en financement, Niveau 1, sous le numéro 14001345.Agence Maisons France Confort de Magny-le-Hongre (77700)
- Téléphone :
- 01 84 80 92 96
- Adressse :
- 11 rue de Courtalin
77700 Magny-le-Hongre, France
