Maison neuve à
Chelles (77500) Référence : TM2442691_18

Prix du projet : Maison avec Terrain

prix 280 000 €

  • 5 pièces
  • 3 chambres
  • Surface maison 90 m2

VENTE : maison de 5 pièces (90 m²) à Chelles
MAISON 5 PIÈCES NEUVE
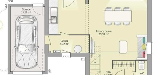
Au pied de la station Chelles-Gournay du RER E (20 min de Paris), nous vous présentons à vendre à Chelles (77500), cette maison de 5 pièces de plain-pied de 90 m² et de 400 m² de terrain.
Elle dispose de trois chambres, d'une cuisine et d'une salle de bains. La maison est neuve.
Plusieurs établissements scolaires (maternelle, élémentaire, primaire et lycée) sont implantés à moins de 10 minutes à pied, tout comme quatre crèches. Niveau transports en commun, il y a le RER E, A et B ainsi que 29 gares à moins de 10 minutes en voiture. On trouve deux tennis, une bibliothèque, des commerces, des boulangeries, un supermarché, quatre épiceries et deux supérettes dans les environs.
Elle est proposée à l'achat pour 280 000 €.
Contactez Teddy MELES (tél : 06-17-56-83-36) pour toute information sur la maison, sur les démarches à suivre ou sur les modalités de vente. Maisons France Confort Magny-le-Hongre est là pour vous accompagner dans tous vos projets immobiliers.

Annonce proposée par un Agent Commercial Partenaire.

Mentions légales

Terrain proposé par un partenaire foncier selon disponibilités et autorisation de publicité au prix de 250 000 €. Hors droit d'enregistrement et frais de notaire. Terrain + Maison proposés au prix de 280 000 € (Hors branchements et raccordements, papiers peints, peintures, revêtement de sol dans les chambres. Tarif modifiable sans préavis). Etiquette énergie : A. Différents modèles disponibles pour ce terrain. Assurances et garanties du constructeur (RC professionnelle, décennale, dommage ouvrage, garantie de remboursement de l'acompte, livraison à prix et délai convenu) : https://www.maisons-france-confort.fr/mentions-legales/. HEXAOM Services est enregistré auprès de l'ORIAS en tant que Courtier en financement, Niveau 1, sous le numéro 14001345.

Contactez l'agence de Magny-le-Hongre

01 84 80 92 96

    * Champs obligatoires

    Vos informations sont traitées par HEXAOM et transmises à un conseiller commercial qui vous contactera afin de répondre à votre demande. Les plans et images présentés sur notre site sont la propriété d’HEXAOM et ne peuvent pas être reproduits sans son accord. Pour retrouver notre politique de protection des données personnelles et exercer vos droits conformément à la « loi informatique et liberté » cliquez-ici.