Maison neuve à
Chelles
(77500) Référence :
TM2442691_2
Prix du projet : Maison avec Terrain
prix 420 000 €
- 5 pièces
- 3 chambres
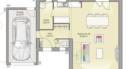
- Surface maison 90 m2
VENTE : maison T5 (90 m²) à Chelles
MAISON 5 PIÈCES NEUVE
Au pied du RER E (station Chelles-Gournay, 20 min de Paris), votre agence Maisons France Confort Magny-le-Hongre est heureuse de vous présenter cette maison de 5 pièces de 90 m² en vente à Chelles (77500).
Cette maison possède 2 niveaux. Son intérieur est composé de trois chambres, d'une cuisine et d'une salle de bains. Cette maison est neuve.
Le terrain du bien s'étend sur 400 m².
Plusieurs établissements scolaires (maternelle, élémentaire, primaire et lycée) sont implantés à moins de 10 minutes à pied, tout comme quatre crèches. Niveau transports en commun, on trouve les lignes de RER E, A et B ainsi que 29 gares à moins de 10 minutes en voiture. Il y a deux tennis, une bibliothèque, des commerces, des boulangeries, un supermarché, deux supérettes et quatre épiceries dans les environs.
Son prix de vente est de 420 000 €.
N'hésitez pas à prendre contact avec Teddy MELES (06-17-56-83-36) pour tout renseignement sur cette propriété.
Annonce proposée par un Agent Commercial Partenaire.
Mentions légales
Terrain proposé par un partenaire foncier selon disponibilités et autorisation de publicité au prix de 250 000 €. Hors droit d'enregistrement et frais de notaire. Terrain + Maison proposés au prix de 420 000 € (Hors branchements et raccordements, papiers peints, peintures, revêtement de sol dans les chambres. Tarif modifiable sans préavis). Etiquette énergie : A. Différents modèles disponibles pour ce terrain. Assurances et garanties du constructeur (RC professionnelle, décennale, dommage ouvrage, garantie de remboursement de l'acompte, livraison à prix et délai convenu) : https://www.maisons-france-confort.fr/mentions-legales/. HEXAOM Services est enregistré auprès de l'ORIAS en tant que Courtier en financement, Niveau 1, sous le numéro 14001345.Agence Maisons France Confort de Magny-le-Hongre (77700)
- Téléphone :
- 01 84 80 92 96
- Adressse :
- 11 rue de Courtalin
77700 Magny-le-Hongre, France
