Maison neuve à
Chennevières-sur-Marne
(94430) Référence :
FS2428294_1
Prix du projet : Maison avec Terrain
prix 387 000 €
- 5 pièces
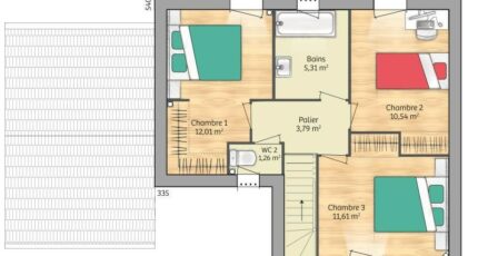
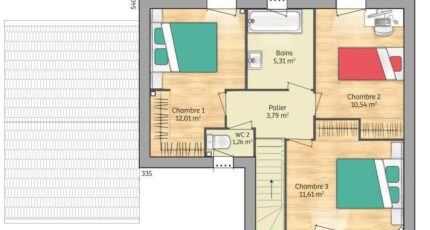
- 3 chambres
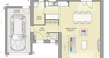
- Surface maison 90 m2
Maison de 5 pièces (90 m²) en vente à Chennevières-sur-Marne
PROCHE DE PARIS - MAISON 5 PIÈCES NEUVE
Proche de la station La Varenne-Chennevières du RER A (15 min de Paris), à vendre à Chennevières-sur-Marne (94430), nous vous présentons cette maison de 5 pièces de 90 m². Son intérieur dispose de trois chambres, d'une cuisine et d'une salle de bains.
Le terrain de la maison est de 750 m².
Il s'agit d'une maison de 2 niveaux. Elle est neuve.
Des écoles du primaire et du secondaire sont implantées à moins de 10 minutes à pied, tout comme trois crèches. Niveau transports en commun, il y a les lignes de RER A, E, D et C ainsi que 16 gares à moins de 10 minutes en voiture. On trouve une bibliothèque, un tennis, un bassin de natation, trois supermarchés, des commerces, des boulangeries, un bureau de poste et une supérette à proximité de la maison.
Elle est proposée à l'achat pour 387 000 €.
Contactez notre agence (SOUMARMON Félix : 06-10-24-97-84) pour obtenir de plus amples informations sur cette maison. Donnez vie à vos projets immobiliers avec Maisons France Confort Magny-le-Hongre.
Annonce proposée par un Agent Commercial Partenaire.
Mentions légales
Terrain proposé par un partenaire foncier selon disponibilités et autorisation de publicité au prix de 220 000 €. Hors droit d'enregistrement et frais de notaire. Terrain + Maison proposés au prix de 387 000 € (Hors branchements et raccordements, papiers peints, peintures, revêtement de sol dans les chambres. Tarif modifiable sans préavis). Etiquette énergie : A. Différents modèles disponibles pour ce terrain. Assurances et garanties du constructeur (RC professionnelle, décennale, dommage ouvrage, garantie de remboursement de l'acompte, livraison à prix et délai convenu) : https://www.maisons-france-confort.fr/mentions-legales/. HEXAOM Services est enregistré auprès de l'ORIAS en tant que Courtier en financement, Niveau 1, sous le numéro 14001345.Agence Maisons France Confort de Magny-le-Hongre (77700)
- Téléphone :
- 01 84 80 92 96
- Adressse :
- 11 rue de Courtalin
77700 Magny-le-Hongre, France
