Maison neuve à
Chessy (77700) Référence : DC2376267_2

Prix du projet : Maison avec Terrain

prix 390 000 €

  • 5 pièces
  • 3 chambres
  • Surface maison 100 m2

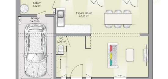
Couilly-Pont-aux-Dames : maison T5 (100 m²) en vente
PROCHE DE CHESSY - MAISON 5 PIÈCES NEUVE
En vente : située à quelques kilomètres de Montreuil, nous sommes ravis de vous proposer cette maison de 5 pièces de 100 m² à Couilly-Pont-aux-Dames (77860).
Cette maison possède 2 niveaux. Son intérieur est composé de trois chambres, d'une cuisine et d'une salle de bains. Cette maison est neuve.
Le terrain de la propriété s'étend sur 478 m².
Il y a le Collège Privé Sainte Thérèse, l'École Primaire Privée Sainte-Thérèse et l'École Primaire Fabre d'Eglantine à moins de 10 minutes à pied et une crèche. Côté transports en commun, on trouve la gare Couilly-Saint-Germain-Quincy juste à côté. Il y a un tennis, une bibliothèque, des commerces, trois boulangeries, un supermarché, une supérette et un bureau de poste dans les environs.
Elle est proposée à l'achat pour 390 000 €.
Prenez contact avec notre agence (David. CORDIER : 01-64-14-43-30) pour tout renseignement sur la maison, sur les démarches à suivre ou sur les modalités de vente. Maisons France Confort Melun vous accompagne à toutes les étapes de l'achat et dans tous vos projets immobiliers.

Annonce proposée par un Agent Commercial Partenaire.

Mentions légales

Terrain proposé par un partenaire foncier selon disponibilités et autorisation de publicité au prix de 185 000 €. Hors droit d'enregistrement et frais de notaire. Terrain + Maison proposés au prix de 390 000 € (Hors branchements et raccordements, papiers peints, peintures, revêtement de sol dans les chambres. Tarif modifiable sans préavis). Etiquette énergie : A. Différents modèles disponibles pour ce terrain. Assurances et garanties du constructeur (RC professionnelle, décennale, dommage ouvrage, garantie de remboursement de l'acompte, livraison à prix et délai convenu) : https://www.maisons-france-confort.fr/mentions-legales/. HEXAOM Services est enregistré auprès de l'ORIAS en tant que Courtier en financement, Niveau 1, sous le numéro 14001345.

Contactez l'agence de Melun

01 64 14 43 20

    * Champs obligatoires

    Vos informations sont traitées par HEXAOM et transmises à un conseiller commercial qui vous contactera afin de répondre à votre demande. Les plans et images présentés sur notre site sont la propriété d’HEXAOM et ne peuvent pas être reproduits sans son accord. Pour retrouver notre politique de protection des données personnelles et exercer vos droits conformément à la « loi informatique et liberté » cliquez-ici.