Maison neuve à
Chezelles (36500) Référence : KG2471103_1

Prix du projet : Maison avec Terrain

prix 145 470 €

  • 3 pièces
  • 2 chambres
  • Surface maison 70 m2

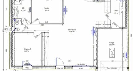
Projet de construction : maison de 3 pièces (70 m²) à Chezelles
EMPLACEMENT PRIVILÉGIÉ - MAISON 3 PIÈCES NEUVE
À deux pas de Châteauroux, nous vous proposons cette maison de 3 pièces de plain-pied de 70 m² à vendre, bénéficiant d'un emplacement d'exception dans Chezelles (36500). Conçue de plain-pied, elle inclut deux chambres, une cuisine et une salle de bains.
Le terrain de la propriété est de 1 048 m².
Cette maison est neuve.
La maison se situe dans un secteur prisé. L'École Maternelle Jean Moulin est implantée à moins de 10 minutes à pied. Il y a un accès à l'autoroute A20 à 8 km. On trouve un tennis et une épicerie à proximité.
Elle est proposée à l'achat pour 145 470 €.
Contactez notre agence (GRIMAUD Kevin : *6-22-14-89-67) pour obtenir de plus amples renseignements sur la maison. Maisons Bruno Petit MJB Châteauroux est là pour vous accompagner dans tous vos projets immobiliers.

Mentions légales

Terrain proposé par un partenaire foncier selon disponibilités et autorisation de publicité au prix de 15 270 €. Hors droit d'enregistrement et frais de notaire. Terrain + Maison proposés au prix de 145 470 € (Hors branchements et raccordements, papiers peints, peintures, revêtement de sol dans les chambres. Tarif modifiable sans préavis). Etiquette énergie : A. Différents modèles disponibles pour ce terrain. Assurances et garanties du constructeur (RC professionnelle, décennale, dommage ouvrage, garantie de remboursement de l'acompte, livraison à prix et délai convenu) : https://www.maisons-brunopetit.fr/mentions-legales/.

Contactez l'agence de Châteauroux

02 54 22 66 24

    * Champs obligatoires

    Vos informations sont traitées par HEXAOM et transmises à un conseiller commercial qui vous contactera afin de répondre à votre demande. Les plans et images présentés sur notre site sont la propriété d’HEXAOM et ne peuvent pas être reproduits sans son accord. Pour retrouver notre politique de protection des données personnelles et exercer vos droits conformément à la « loi informatique et liberté » cliquez-ici.