Maison neuve à
Ciron
(36300) Référence :
KG2430947_9
Prix du projet : Maison avec Terrain
prix 291 153 €
- 5 pièces
- 4 chambres
- Surface maison 120 m2
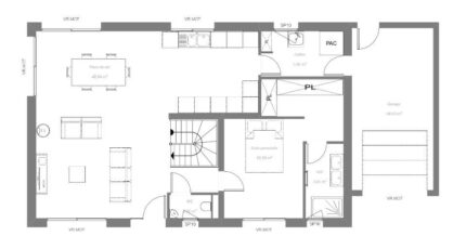
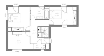
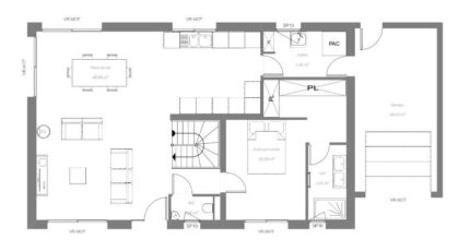
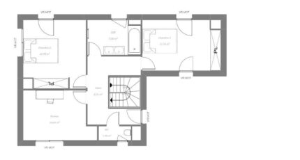
Projet de construction d'une maison F5 (120 m²) à Ciron
IDÉALEMENT SITUÉE - MAISON 5 PIÈCES NEUVE
En vente : nous vous présentons cette maison de 5 pièces de 120 m² idéalement située dans Ciron (36300).
Il s'agit d'une maison de 2 niveaux. Son intérieur dispose de quatre chambres, d'une cuisine et de deux salles de bains. La maison est neuve.
Le terrain de la propriété est de 817 m².
La maison se trouve dans un secteur convoité. On y trouve une école élémentaire. Il y a un accès à l'autoroute A20 à 20 km. Il y a un tennis et une boulangerie à proximité de la maison.
Son prix de vente est de 291 153 €.
Prenez contact avec notre agence (Kevin GRIMAUD : *6-22-14-89-67) pour obtenir de plus amples informations sur la maison.
Mentions légales
Terrain proposé par un partenaire foncier selon disponibilités et autorisation de publicité au prix de 7 353 €. Hors droit d'enregistrement et frais de notaire. Terrain + Maison proposés au prix de 291 153 € (Hors branchements et raccordements, papiers peints, peintures, revêtement de sol dans les chambres. Tarif modifiable sans préavis). Etiquette énergie : A. Différents modèles disponibles pour ce terrain. Assurances et garanties du constructeur (RC professionnelle, décennale, dommage ouvrage, garantie de remboursement de l'acompte, livraison à prix et délai convenu) : https://www.maisons-brunopetit.fr/mentions-legales/.Agence Bruno Petit MJB de Châteauroux (36000)
- Téléphone :
- 02 54 22 66 24
- Adressse :
- 360 avenue de la Châtre
36000 Châteauroux, France